
Nabízíme k prodeji řadový rodinný dům se zastavěnou plochou 54 m² a dvorkem o velikosti 50 m². Dům je napojen na elektřinu, plyn, vodu a kanalizaci a je určen ke kompletní rekonstrukci, což nabízí skvělou příležitost přetvořit jej dle vašich představ.
Dispozice:
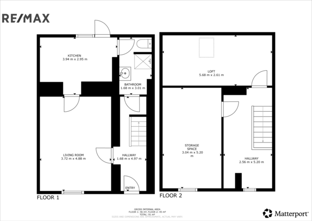
1. nadzemní podlaží: Vstup z ulice vede do zádveří s přístupem do obývacího pokoje i koupelny s WC a sprchovým koutem. Z kuchyně je možné vyjít na dvorek.
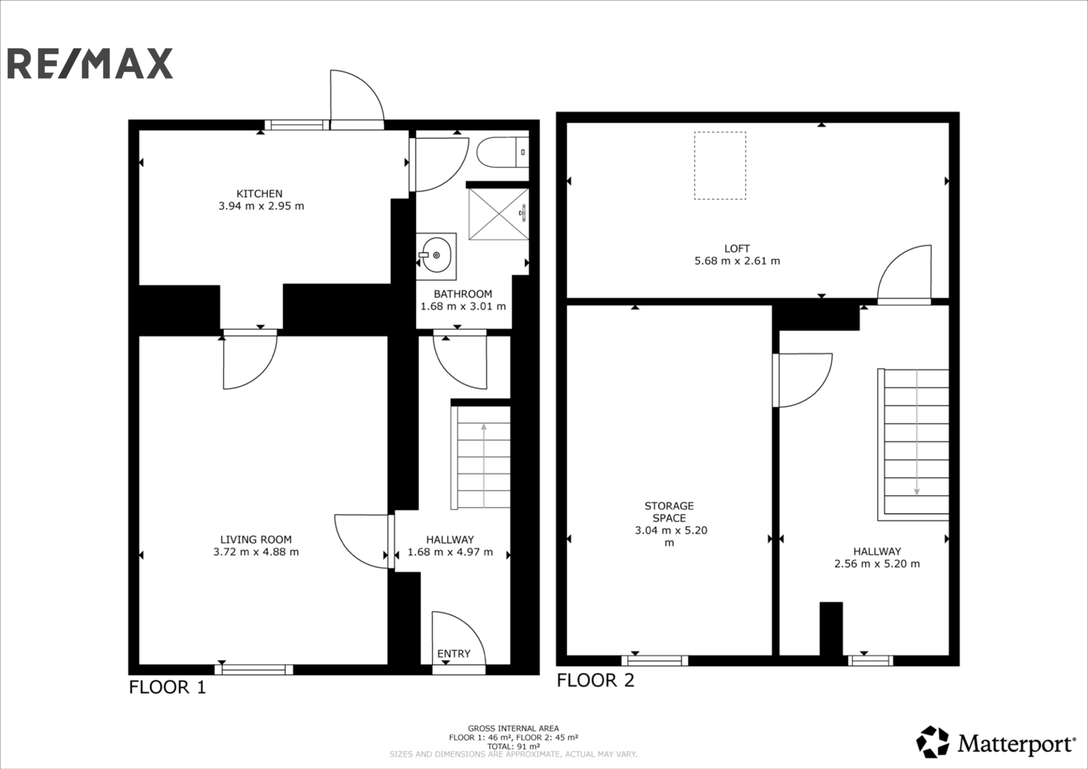
Podkroví: Z dřevěného schodiště vstoupíte do místnosti a chodby s půdou, která je ideální pro úložné prostory. Střecha je sedlová a v původním stavu k rekonstrukci.
Náklady na bydlení:
V domě žila rodina se třemi dětmi. Měsíční zálohy na energie a vodu jsou následující: voda 1 500 Kč, plyn 2 180 Kč a elektřina 4 050 Kč. Plyn byl využíván především k topení, avšak je třeba vzít v úvahu, že kotel je starý s nízkou účinností. Tyto náklady poskytnou orientační představu o měsíčních výdajích spojených s provozem domu.
Orientace:
Dvorek, kuchyň a pokoj v podkroví jsou orientovány na severozápad, což poskytuje příjemný stín v horkých letních dnech. Vstup do domu a obývací pokoj na jihovýchodní stranu zajišťují ranní slunce a celodenní světlost.
Parkování:
Možnost parkování přímo před domem.
Lokalita:
Ivanovice na Hané jsou perfektním místem pro klidné bydlení s výbornou dostupností do okolních měst. Do Vyškova je to pouhých 15 minut jízdy, do Brna i Olomouce přibližně 35 minut. V obci najdete základní občanskou vybavenost včetně obchodů, škol a restaurací. Dopravní spojení je zajištěno pravidelnými autobusovými a vlakovými linkami.
Výhody:
Možnost kompletní rekonstrukce dle vlastních představ.
Klidná lokalita s výborným spojením do větších měst v okolí.
Příjemná orientace místností.
Připojení na optický internet.
Pro více informací a sjednání prohlídky nás neváhejte kontaktovat. Tato nemovitost nabízí jedinečnou příležitost vytvořit si domov přesně podle vašich přání.
Nabízím kompletní servis včetně možnosti financování. Majitelé si vyhrazují právo vybrat kupujícího na základě jim zvolených kritérií. Uvedené míry jsou pouze orientační. Veškeré zveřejněné údaje obsažené v tomto inzerátu mají pouze informativní charakter a nejsou nabídkou ve smyslu § 1731 nebo § 1732 občanského zákoníku, ani se nejedná o veřejný příslib dle § 1733 občanského zákoníku. Z této nabídky tak nikomu nevzniká nárok na uzavření smlouvy.








































418980
49
Domy
Prodej
2
plynovod
za nemovitost
kanalizace
vodovod
230 V
Před rekonstrukcí
Smíšená
Internet
E
NP03238
