








































429048
112
Prodej
2
plynovod
kanalizace
vodovod
Před rekonstrukcí
Cihlová
Telefon
MHD
G
Ve výhradním zastoupení majitele nabízíme ke koupi řadový dvoupodlažní rodinný dům určený ke kompletní rekonstrukci (v původním stavu) se zahradou. Nemovitost se nachází v jedné z nejpříjemnějších brněnských čtvrtí – Jundrově, na vedlejší klidné ulici Jedlová. Pokud tedy hledáte klidné místo k životu s výbornou dostupností do centra, nebo zajímavou investiční příležitost, jste na správné adrese.
Co dům nabízí:
Zastavěná plocha 82 m²
Částečné podsklepení (cca 9 m²)
Aktuální dispozice: 1NP - 1+1, 2NP - 2+1, koupelna a toaleta v mezipatře
Přístavky na dvorku (cca 19 m²) pro uskladnění nebo dílnu
Pozemek o celkové velikosti 728 m², dle listu vlastnictví: zastavěná plocha a nádvoří - 217 m², zahrada - 511 m²
Možnost vytvořit až 3 byty pro investici
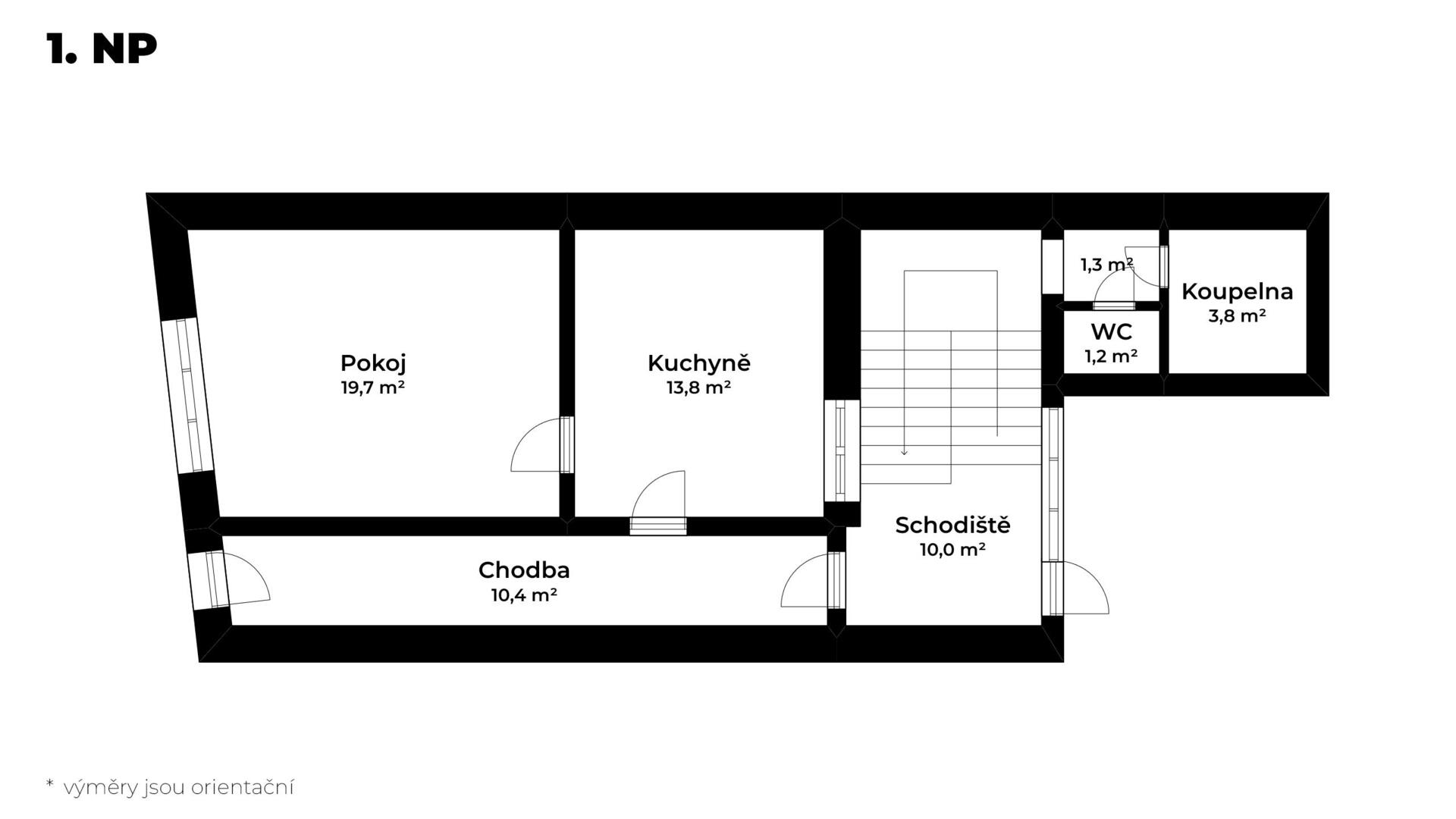
Orientační výměry jednotlivých místností dle matterportu:
1NP:
Chodba - 10,4 m²
Kuchyně - 13,8 m²
Pokoj - 19,7 m²
Schodiště - 10 m²
Mezipatro:
Chodba - 1,3 m²
WC - 1,2 m²
Koupelna - 3,8 m²
2NP:
Schodiště - 5,7 m²
Kuchyně - 9,8 m²
Pokoj - 10,3 m²
Pokoj - 26,7 m²
Podkroví - 48,4 m²
Hledáte domov pro svou rodinu, nebo zvažujete investici do nemovitosti s potenciálem?
Ráda Vám dům osobně ukážu.
Právní upozornění:
Nabízím kompletní servis včetně možnosti financování. V případě více zájemců bude nemovitost prodána nejlepší nabídce. Majitel si vyhrazuje právo vybrat kupujícího na základě jím zvolených kritérií. Uvedené míry a údaje jsou pouze orientační. Veškeré zveřejněné údaje obsažené v tomto inzerátu mají pouze informativní charakter a nejsou nabídkou ve smyslu § 1731 nebo § 1732 občanského zákoníku, ani se nejedná o veřejný příslib dle § 1733 občanského zákoníku. Z této nabídky tak nikomu nevzniká nárok na uzavření smlouvy.
Jundrov patří k těm částem Brna, kde se žije v klidu, ale bez kompromisů.
Zeleň, řeka Svratka a komorní atmosféra původní vesnice tu přirozeně doplňuje moderní rezidenční zástavba. Výsledkem je místo, kde máte pocit sousedství – a zároveň vše, co od městského života čekáte.
Praktická stránka každodenního života je tu silnou stránkou.
V pěší dostupnosti najdete zastávku MHD, obchod, restaurace, poštu, lékaře i mateřskou a základní školu. Do centra Brna se dostanete rychle a pohodlně, ať už autem nebo veřejnou dopravou.
Jundrov je ideální volba pro ty, kdo hledají rovnováhu.
Klidné bydlení u řeky, dostatek zeleně na procházky či sport a přitom plnohodnotná městská infrastruktura bez nutnosti dojíždění.
