Hledáte svůj nový domov, který si můžete zrealizovat dle svých vlastních představ a snů?
Okouzlující místo uprostřed moravských vinic a historických památek?

Ve výhradním zastoupení majitele si vám dovoluji představit rohový útulný rodinný dům, nacházející se ve městě Bzenci, na ulici Olšovská.
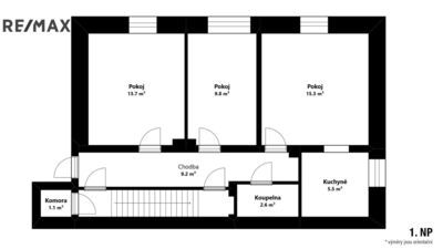
Tento částečně zrekonstruovaný jednopodlažní cihlový rodinný dům o dispozici 4+1, s obytným podkrovím vám nabízí velkou příležitost, díky které si svůj domov snů můžete dokončit dle svých vlastních představ.

V podobě přiložené vizualizace možných podob si vám dovolím představit jednu z nich.

Bzenec, malebné město v srdci jižní Moravy, obklopené krásnou krajinou bohatých vinic a lesů, které zvou ke krásným chvílím i odpočinku.
Místo s dostatečně bohatou historií a útulnými vinnými sklípky nadchne každého milovníka vína a přírody.

Rodinný dům prošel značně rozsáhlou rekonstrukcí v roce 2021, a to v podobě nové přípojky domovní kanalizace, rozvodů vody, odpadních vod a kompletních rozvodů elektroinstalace v domě.
Interiér domu má nové vnitřní omítky a sádrokartonové podhledy, je zde příprava vnitřních dveří pro obložkové zárubně.
Byla vyměněna nová okna za plastová, okapy a svody dešťové vody.

Rekonstrukce také zahrnovala výměnu laťování a střešní krytiny, zde byla zvolena pálená krytina značky Tondach, včetně nových komínů, včetně fasádní omítky.
Je zde provedena příprava na elektrokotel.
K dispozici k dokončení interiéru domu je plovoucí laminátová podlaha a kuchyňská linka.
Topení v domě je řešeno pomocí kachlových kamen, která vám navodí příjemnou a romantickou atmosféru.

Prostorný půdní prostor o celkové ploše 59,5 m2 vám nabízí dostatku prostoru k dalšímu jeho možnému využití.
K domu náleží sklepní prostor, rozdělen do tří samostatných místností, s celkovou plochou 38,2 m2.

Celková plocha pozemku čítá 233 m2, z toho menší zahrada s plochou 152 m2, kterou dostatečně využijete pro krásné chvíle s rodinou.
Na přilehlé zahradě u domu se nachází garáž, která má samostatný vstup, spolu s dílnou a kůlnou.

U domu je zavedena studna.
Rodinný dům je napojen na veřejnou kanalizaci i vodovod.
Plynovod je umístěn na hranici pozemku.

Bzenec nabízí svým obyvatelům a návštěvníkům bohatou občanskou vybavenost včetně škol, školky, obchodů a zdravotnických zařízení.
Díky modernímu zázemí a blízkosti přírody je ideálním místem pro pohodlný a aktivní život.

Prodávající si vyhrazuje právo vybrat kupujícího na základě jím zvolených kritérií.
Průkaz energetické náročnosti budovy nebyl zatím předložen. V souladu s právní úpravou proto uvádím energetickou třídu G.

Domluvte si osobní prohlídku a načerpejte příjemnou atmosféru tohoto domu.
Velmi ráda vás zde přivítám.

Andrea Vašíčková
RE/MAX Delux

REMAX Brno
Realitní makléř Brno
Rrealitka Brno
REMAX Delux
Tomáš Šimek
Práce v realitách Brno
Prodej nemovitostí Brno
2398478.jpg
2398471.jpg
2398494.jpg
2398447.jpg
2398458.jpg
2398452.jpg
2398485.jpg
2398445.jpg
2398460.jpg
2398479.jpg
2398469.jpg
2398468.jpg
2398465.jpg
2398455.jpg
2398477.jpg
2398459.jpg
2398491.jpg
2398456.jpg
2398463.jpg
2398453.jpg
2398442.jpg
2398454.jpg
2398462.jpg
2398457.jpg
2398467.jpg
2398448.jpg
2398470.jpg
2398444.jpg
2398493.jpg
2398483.jpg
2398482.jpg
2398499.jpg