Hledáte místo, které si opravdu zamilujete, ať už pro svoji rodinu nebo jako investiční záměr? Jste třeba milovníci golfu nebo chcete chovat zvířata a sníte o větším pozemku v soukromí? Dovolte mi nabídnout ke koupi jedinečný stylový dům 6+kk s garáží v Kořenci u Boskovic. Tento dům vás zaujme svým dispozičním řešením a uchvátí pozemkem, který ho obklopuje. Představuje totiž možnosti, komfort a sepjetí s přírodou.

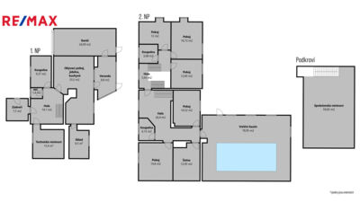
Dům má celkem 6 zařízených světlých pokojů a 3 koupelny. V hlavní obytné části najdete obývací prostor s krbem, jídelnou a kuchyňským koutem, na který navazuje zimní zahrada a vstup na uzavřený dvůr s pergolou a posezením u grilu. V patře jsou umístěné 3 podkrovní pokoje a koupelna s toaletou.
Ve druhé části domu se nachází další dva pokoje, koupelna a podkrovní společenská místnost, která bude ideální pro vaše rodinná setkání, oslavy nebo zábavu s přáteli.
Celoroční relax si dopřejete u vnitřního vyhřívaného bazénu v působivé místnosti s vysokými stropy a dřevěnými trámy. Odtud vede vstup k posezení na terase a dále do zahrady. Vedle bazénu se nachází místnost, kterou lze využít například jako šatnu, fitness či saunu. Atmosféru celého domu podtrhují původní téměř 100 let staré dřevěné trámy, stylový nábytek a doplňky.

K domu náleží opravdu nádherný a rozlehlý pozemek se svými zákoutími, vzrostlými jehličnany, ale také s ovocnými stromy, kde se budete cítit tak trochu jako v zahradě, v parku a v lese zároveň. Vaše soukromí zajistí nejenom velikost pozemku, ale také jeho poloha na okraji zastavitelného území obce. Dle územního plánu je část pozemku vedena jako plocha bydlení a je zastavitelná za podmínek stanovených územním plánem.

U domu nechybí garáž a pokud máte aut více, pohodlně je zaparkujete také v bočním vjezdu vedle domu. Do zděného zahradního domku zase uskladníte nářadí, kola a dalších věci.
Vytápění domu a ohřev vody zajišťuje plynový kotel Protherm. Zatopit se dá i v krbu, který díky teplovzdušnému rozvodu vytopí i pokoje v podkroví. Ve všech místnostech v domě jsou radiátory. Druhý plynový kotel slouží pro ohřev vody v bazénu a vytápění v bazénové místnosti, kde je kromě radiátorů také podlahové topení. Dům je napojený na veškeré inženýrské sítě včetně optického připojení k internetu. Prodává se včetně nábytku a zařízení (není podmínkou prodeje).

Obec Kořenec leží 10 km od města Boskovice v části Drahanské vrchoviny, která je typická svojí mírně zvlněnou krajinou v nadmořské výšce nad 600 m.
V obci se nachází známý GOLF & Ski Resort, který nabízí hru na mistrovském 18jamkovém golfovém hřišti. V zimě se zde upravují tratě pro běžkaře. V okolí je mnoho turistických a cyklistických tras, rybařit se dá ve vedlejší obci Suchý. Samotná obec má mateřskou školu, kulturní dům, kapli, dvě prodejny, pohostinství aj. V Boskovicích potom najdete veškeré služby včetně nemocnice, kulturní a sportovní vyžití.

Pokud vás toto místo s jedinečnou atmosférou chytlo za srdce, ráda se s vámi setkám na prohlídce.

REMAX Brno
Realitní makléř Brno
Rrealitka Brno
REMAX Delux
Tomáš Šimek
Práce v realitách Brno
2947795.jpg
2947821.jpg
2947809.jpg
2947814.jpg
3220841.jpg
2947806.jpg
2947829.jpg
2947833.jpg
2947793.jpg
2947845.jpg
2947796.jpg
2947798.jpg
3033541.jpg
2947805.jpg
2947835.jpg
2947797.jpg
2947819.jpg
2947815.jpg
2947808.jpg
2947825.jpg
2947812.jpg
2947799.jpg
3033546.jpg
2947822.jpg
2947848.jpg
2947841.jpg
2947840.png
2947837.png
2947791.jpg
2947838.png
2947839.png
2947844.png