Jste velká rodina a toužíte po domově, kde každý den přináší klid i krásné chvíle, nebo hledáte zajímavou investiční příležitost?
Místo, odkud se otevírá úchvatný výhled do zeleně.

Srdečně vás vítám v městské části Bohunice, v klidném a příjemném zákoutí Brna. Lokalita je obklopena zelení a okouzlí svým klidem a blízkostí přírody. Zde se klidné bydlení snoubí s pohodlím města a nabízí ideální zázemí pro spokojený rodinný život.

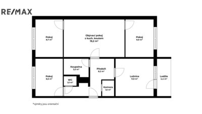
Ve výhradním zastoupení majitele si vám dovoluji představit tento elegantní, plně zrekonstruovaný, prostorný a prosluněný byt v družstevním vlastnictví, vedený jako 4+kk, který byl modernizací přestavěn na dispozici 5+kk. Nachází se v 1. patře panelového domu s výtahem.

Pevně věřím, že vás nadchne poloha bytu a jeho prostorné řešení. Dominantou je obývací pokoj propojený s kuchyňským koutem vybaveným vestavěnou linkou a spotřebiči Whirlpool. Byt nabízí čtyři neprůchozí pokoje, zajišťující klid a soukromí. Z ložnice je vstup na zasklený prostorný balkón s výhledem do zeleně, ideální pro příjemné ranní i večerní chvíle. Ložnice i pokoj jsou orientovány na jižní stranu.

Byt prošel v roce 2017 pečlivou a velmi zdařilou modernizací, při níž byl dispozičně využit každý prostor. Nabízí komfortní a pohodlné bydlení bez nutnosti dalších investic. Byla kompletně obnovena elektroinstalace, odpadní rozvody, omítky, stropní podhledy i podlahy. Modernizací vzniklo nové zděné jádro s elegantní koupelnou a samostatnou toaletou. Byla instalována nová vestavěná kuchyně, která dokonale doplňuje moderní charakter bytu.
Je zde praktická komora, k bytu náleží zděný sklep - 1,43 m2.

Bytový dům prošel kompletní revitalizací včetně sanace a zateplení střechy. Vchodové dveře byly nahrazeny hliníkovými dveřmi systému Aliplast a do zádveří instalovány posuvné automatické dveře TRIDO. Přístupový systém má bezdotykovou čtečku čipů. Ve společných prostorách byla vyměněna plastová okna a rekonstruována elektroinstalace, na chodbách a ve sklepních prostorách instalována pohybová čidla. Provedena byla kompletní rekonstrukce výtahu a vodovodních rozvodů. Dům je vybaven kamerovým systémem a nabízí vstup z obou stran, přičemž výtah vede až do sklepních prostor.

Parkování lze pohodlně u domu. V těsné blízkosti se nachází dětské hřiště a veškerá občanská vybavenost.
Bytová jednotka je prodávána s vybavením.
Průkaz energetické náročnosti budovy uvádí třídu B – velmi úsporná.

Prodávající si vyhrazuje právo vybrat kupujícího na základě jím zvolených kritérií.
V případě více zájemců bude nemovitost prodána nejlepší nabídce a majitel si vyhrazuje právo vybrat kupujícího na základě jim zvolených kritérií. Veškeré zveřejněné údaje obsažené v tomto inzerátu mají pouze informativní charakter a nejsou nabídkou ve smyslu § 1731 nebo § 1732 občanského zákoníku, ani se nejedná o veřejný příslib dle § 1733 občanského zákoníku. Z této nabídky tak nikomu nevzniká nárok na uzavření smlouvy.

Domluvte si svůj čas prohlídky.

S úctou,
Andrea Vašíčková
RE/MAX Delux

REMAX Brno
Realitní makléř Brno
Rrealitka Brno
REMAX Delux
Tomáš Šimek
Práce v realitách Brno
Prodej nemovitostí Brno
2951938.jpg
2951922.jpg
2951936.jpg
2951937.jpg
2951933.jpg
2951932.jpg
2951926.jpg
2951912.jpg
2951945.jpg
2951944.jpg
2951946.jpg
2951947.jpg
2951916.jpg
2951915.jpg
2951917.jpg
2951919.jpg
2951940.jpg
2951941.jpg
2951943.jpg
2951953.jpg
2951954.jpg
2951927.jpg
2951928.jpg
2951929.jpg
2951949.jpg
2951950.jpg
2951951.jpg
2951952.jpg
2951956.jpg
2951957.jpg