Rašovice
| Číslo nabídky: 422252 | Plocha užitná: 209 | Kategorie: Domy |
| Typ: Prodej | Počet podlaží: 2 | Plyn: plynovod |
| Jednotka: za nemovitost | Odpad: kanalizace, septik, jímka | Voda: vodovod, Studna |
| Elektřina: 230 V, 400 V | Stav objektu: Velmi dobrý | Budova: Smíšená |
| Doprava: silnice, autobus | Energetický štítek: G | Kód nabídky: NP03243 |
Zamilovali jste se do jižní Moravy a oblasti kolem historického Slavkova? Máte velkou rodinu a hledáte nový domov? Pak tato nabídka je přesně to pravé pro vás.
Ve výhradním zastoupení majitelky vám nabízíme k prodeji rodinný dům v obci Rašovice, okres Vyškov, vzdálené pouhých 6 km od Slavkova u Brna.
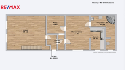
Tento patrový dům s 6 pokoji v řadové zástavbě, disponuje užitnou plochou 209 m² a zastavěnou plochou 140 m². Celková plocha pozemku je 330 m² .
V přízemí domu najdeme 3 pokoje, kuchyni a prostornou koupelnu s toaletou.
V podkroví jsou další 3 pokoje, z nichž jeden je navržen pro vybudování sociálního zařízení a kuchyňského koutu. Tímto řešením se zde nabízí možnost vytvoření dvou samostatných bytových jednotek s dispozicí 3+kk, což představuje ideální variantu pro rodinné bydlení i vícegenerační bydlení .
Dvorek je dostatečně prostorný a umožňuje stavbu pergoly pro příjemné posezení a využití stávající udírny. K dispozici je i sklep a dílna, které potěší každého kutila. Z dvorku se po schodech dostanete na menší zahradu, kde máte možnost pěstovat vlastní zeleninu či vybudovat bazén nebo prostor pro hry dětí.
Parkování je zajištěno nejen před domem ve slepé ulici, ale také v průjezdu domu, což ocení každá rodina. Objekt je v dobrém stavu, proběhla tu částečná rekonstrukce v letech 2016-2019, nebyla však dokončena. Byla vyměněna okna, elektřina je již v mědi a v roce 1997 byla udělána nová střecha.
Topit v domě je možné krbovými kamny na pevná paliva nebo elektrickými přímotopy. Teplá voda je zabezpečena elektrickým kotlem. Plyn v domě není, přípojka je však před domem, nic tedy nebrání tomu připojit dům i na plyn.
V současné době je v kuchyni plynový sporák s elektrickou troubou, plyn je však k vaření používán z bomby.
Dostupnost dopravy je zajištěna možností příjezdu po silnici a pravidelným autobusovým spojením integrovanou dopravou Jihomoravského kraje. Dům je napojen na vodovod a odpad je řešen kanalizací, což poskytuje komfortní a moderní standard bydlení.
S obytnou plochou 209 m² jsou možnosti využití tohoto prostoru opravdu neomezené a záleží pouze na vaší fantazii a představách o bydlení.
V Rašovicích najdete veškerou občanskou vybavenost , obchody, restaurace, mateřskou i základní školu, sportovní oddíl, dětské hřiště i knihovnu. Je tu i bohatý kulturní život.
V obci byla vybudována nová místní komunikace, veřejné osvětlení, kabelová televize, plynofikace, vodovod i splašková kanalizace.
Okolní příroda a lesy vybízejí nejen k pěším výletům a houbaření, ale i cyklo výletům.
Pokud vás nabídka zaujala, neváhejte kontaktovat makléřku nabídky.