Číslo nabídky: 423185 | Plocha užitná: 43 | Kategorie: Byty |
Podlaží umístění: 3 | Typ: Prodej | Podkategorie: 2 + kk |
Plyn: plynovod | Jednotka: za nemovitost | Odpad: kanalizace |
Voda: vodovod | Elektřina: 120 V, 230 V | Stav objektu: Dobrý |
Budova: Cihlová | Vlastnictví: Družstevní | Doprava: vlak, silnice, autobus |
Energetický štítek: G | Kód nabídky: NP03281 |
Exkluzivně nabízíme k převodu družstevní byt 2+kk s dvěma balkony v Blansku, ulice Na Pískách.
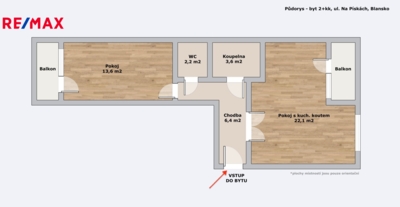
Bytová jednotka je dispozičně řešena jako 2+kk, přičemž disponuje dvěma balkony – jeden je přístupný z kuchyně, druhý z dětského pokoje. Orientace na východ a západ zajišťuje dostatek denního světla po celý den. Byt se nachází ve 3. nadzemním podlaží domu s výtahem a k bytu náleží také sklepní kóje.
Byt se prodává včetně kompletního vybavení a nábytku, což umožňuje okamžité využití, a to jak k vlastnímu bydlení, tak i jako investici k pronájmu.
Další informace k převodu:
• Převod družstevního podílu je spojen s poplatkem (vklad členského příspěvku družstvu) ve výši 5 000 Kč.
• Lhůta pro uvolnění závazku města a možnost převodu bytu do osobního vlastnictví je stanovena na jaro 2026, kdy se o převodu bude hlasovat na řádné členské schůzi.
• Na bytě neváznou žádné pohledávky.
• V říjnu letošního roku proběhne v celém domě nová výmalba společných prostor. Družstvo je bez dluhů.
Náklady spojené s užíváním bytu:
• Záloha na ústřední vytápění: 1 900 Kč
• Záloha na vodné a stočné: 1 200 Kč
• Úklid: 100 Kč
• Záloha na výtah: 360 Kč
• Záloha na osvětlení společných prostor: 80 Kč
• Fond oprav: 1 113 Kč
• Správa: 120 Kč
• Pojištění: 35 Kč
• Elektřina: cca 1 500 Kč
Každoročně dochází k vracení přeplatků jak za elektřinu, tak i za topení.
Blansko je moderní okresní město ležící v srdci Moravského krasu, pouhých 25 km severně od Brna. Nabízí veškerou občanskou vybavenost – mateřské, základní i střední školy, sportoviště, zdravotní péči i kulturní zázemí. V blízkosti nabízeného bytu se nachází základní a střední škola, což z lokality činí ideální místo pro rodinné bydlení. Blansko je známé svou atraktivní polohou u vstupu do chráněné krajinné oblasti Moravský kras, která je vyhledávaná pro turistiku i rekreaci.
Pokud hledáte klidné bydlení pro rodinu v přírodě s výbornou občanskou vybaveností, nebo zajímavou investiční příležitost, tato nabídka je pro vás.
Pro více informací, a domluvení času své prohlídky mě neváhejte kontaktovat.
V případě více zájemců bude nemovitost prodána nejlepší nabídce a majitel si vyhrazuje právo vybrat kupujícího na základě jím zvolených kritérií. Veškeré zveřejněné údaje obsažené v tomto inzerátu mají pouze informativní charakter a nejsou nabídkou ve smyslu § 1731 nebo § 1732 občanského zákoníku, ani se nejedná o veřejný příslib dle § 1733 občanského zákoníku.