Nabízím k prodeji samostatný cihlový rodinný dům v malebné obci Seč, na adrese ulice K Přehradě, která je oddělena od hlavního tahu a nabízí tak dostatek soukromí a klidu. Dům se nachází v klidné lokalitě, přímo u vyhledávané Sečské přehrady, která láká k rekreaci, koupání, vodním sportům i procházkám v přírodě. Okolí nabízí krásné výhledy, romantické výlety k zřícenině hradu Oheb a pohodu daleko od městského shonu.

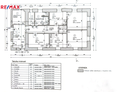
Tento přízemní cihlový dům o zastavěné ploše 177 m² a užitné ploše 132 m² je tvořen 5ti pokoji, což ho činí ideálním pro větší rodinu nebo pro využití jako investici. Na domě byla nedávno provedena nová fasáda a výměna střešní krytiny včetně klempířských prvků. Dále byla vyměněna většina oken za plastová, díky čemuž je zlepšena dlouhodobá ochrana domu a energetická úspornost. Dům je v předrekonstrukčním stavu uvnitř, takže jej lze upravit přesně podle vlastních představ.

Pozemek o celkové ploše 1 146 m² poskytuje dostatek prostoru pro zahradu, dětské hřiště, relaxační zóny nebo hobby aktivity.

Dům je napojen na městskou kanalizaci a vodovod, elektřinu, topení zajišťuje kotel na tuhá paliva v rámci rekonstrukce si však můžete zvolit vlastní řešení vytápění.

Seč je oblíbená lokalita s kompletní občanskou vybaveností. V obci najdete základní i mateřskou školu, zdravotní středisko, lékárnu, knihovnu, kulturní dům, poštu, obchody a služby, a zároveň zde funguje i dobré dopravní spojení autobusem i autem.

Díky blízkosti větších měst, jako je Chrudim či Pardubice, si užijete poklidného života, aniž byste byli odříznuti od veškerého komfortu.
Tento dům je ideální pro rodiny, které hledají klidné bydlení v krásné přírodě, pro ty, kdo chtějí vytvořit svůj vysněný domov, nebo pro investory hledající perspektivní nemovitost v atraktivní rekreační oblasti.

Neváhejte nás kontaktovat a domluvte si prohlídku, kde si můžete představit život v tomto kouzelném domě u Sečské přehrady.

----------

Majitel si vyhrazuje právo vybrat kupujícího na základě jim zvolených kritérií. Veškeré zveřejněné údaje obsažené v tomto inzerátu mají pouze informativní charakter a nejsou nabídkou ve smyslu § 1731 nebo § 1732 občanského zákoníku, ani se nejedná o veřejný příslib dle § 1733 občanského zákoníku. Z této nabídky tak nikomu nevzniká nárok na uzavření smlouvy. Berte prosím na vědomí, že uvedené míry mohou být pouze orientační.

REMAX Brno
Realitní makléř Brno
Rrealitka Brno
REMAX Delux
Tomáš Šimek
Práce v realitách Brno
Prodej nemovitostí Brno
3011529.jpg
3011537.jpg
3011535.jpg
3011536.jpg
3011538.jpg
3011539.jpg
3011540.jpg
3011530.jpg
3011541.jpg
3011542.jpg
3011533.jpg
3011534.jpg
3011531.jpg
3011524.jpg
3011521.jpg
3011522.jpg
3017559.jpeg