Modřice
| Číslo nabídky: 425573 | Plocha užitná: 252 | Kategorie: Domy |
| Typ: Prodej | Počet podlaží: 2 | Plyn: plynovod |
| Jednotka: za nemovitost | Odpad: kanalizace | Stav objektu: Velmi dobrý |
| Budova: Smíšená | Doprava: dálnice, silnice, MHD, autobus | Energetický štítek: G |
| Kód nabídky: NP03330 |
Místo, které čeká na nový začátek – Modřice, Náměstí Svobody 19
Na první pohled možná nic, co by vás zaujalo.
Starý dům v centru Modřic, který už má svá nejlepší léta za sebou.
Ale kdo má představivost, uvidí pozemek s obrovským potenciálem – skvělé místo pro nový domov nebo zajímavou investici.
Nabízíme rodinný dům určený k celkové rekonstrukci nebo demolici.
A demolice? Ta už je povolená, takže se můžete pustit do práce hned.
📐 Základní parametry:
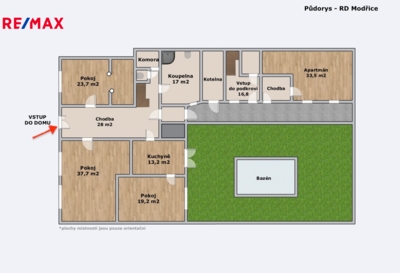
• Celková plocha pozemku: 522 m²
• Zastavěná plocha: 306 m²
• Dům je řadový
• Dům je podsklepený
• Více než 150 m2 nevyužitého půdního prostoru
• Napojený na všechny inženýrské sítě – elektřinu, vodovod, kanalizaci i plyn
• Dle územního plánu: plochy smíšené, povolená výstavba 1 nadzemní podlaží + podkroví
Na dvoře se nachází také velký bazén, který má ta nejlepší léta už za sebou, ale dotváří charakter místa – a může se stát součástí nové zahrady nebo zcela nového projektu.
Díky vysokému podílu zastavěné plochy vůči celkové výměře má pozemek výjimečný potenciál.
• Pro investora skvělá příležitost vybudovat zde rodinný dům se třemi bytovými jednotkami.
• Pro jednotlivce ideální šance postavit si vlastní dům podle svých představ – v centru města, s výbornou dostupností a kompletními sítěmi.
Lokalita, která dává smysl:
Modřice jsou vyhledávané město na jižním okraji Brna. Nabízí klidné bydlení s výbornou dopravní dostupností – autem jste v Brně za pár minut, skvělé spojení zajišťuje i vlak a autobus.
V docházkové vzdálenosti je náměstí, obchody, škola, školka, restaurace, služby i sportoviště.
Nedaleko vede cyklostezka podél řeky Svratky a výhodou je i blízkost obchodního centra Olympia.
Tahle nemovitost možná nevypadá lákavě.
Ale kdo má vizi, uvidí v ní místo s obrovským potenciálem – ať už pro vlastní bydlení, nebo chytrou investici.
Zavolejte mi a domluvte si svůj termín prohlídky.