Číslo nabídky: 425644 | Plocha užitná: 70.1 | Kategorie: Byty |
Podlaží umístění: 1 | Typ: Prodej | Počet podlaží: 8 |
Podkategorie: 3 + 1 | Plyn: plynovod | Jednotka: za nemovitost |
Odpad: kanalizace | Stav objektu: Dobrý | Budova: Panelová |
Vlastnictví: Osobní | Energetický štítek: G | Kód nabídky: NP03325 |
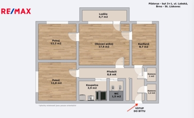
V zastoupení majitele Vám ke koupi nabízíme byt 3+1 v žádané lokalitě Brno – Starý Lískovec na ulici Labská.
Jednotka o celkové výměře 74,8 m2 (vč. sklepní kóje a lodžie 4,7 m2) se nachází v 1.NP/8 panelového bytového domu, který prošel kompletní revitalizací – zateplení fasády, plastová okna, nová střecha, stoupací vedení, modernizované výtahy a vstupní prostory.
Dispozice a vybavení:
- Prostorná vstupní chodba s úložným prostorem (2 komory)
- Kuchyň s jídelním koutem a zachovalou, plně funkční kuchyňskou linkou s myčkou
- Obývací pokoj se vstupem na zasklenou lodžii s výhledem do klidné zeleně
- Dvě neprůchozí ložnice, ideální pro rodinu či spolubydlení
- Zděné bytové jádro
- Zrekonstruovaná koupelna se sprchovým koutem, samostatné WC, bidet
- Sklep, možnost využití společných prostor kočárkárny, kolárny a sušárny
Díky orientaci a poloze ve zvýšeném přízemí je v bytě příjemná teplota i během horkých letních dnů, ideální pro ty, kteří hledají komfort bez nutnosti klimatizace.
Bytový dům se nachází v klidné a vyhledávané části Brna s výbornou občanskou vybaveností. V docházkové vzdálenosti zastávky MHD, obchody, školky, školy, Campus Square, FN Bohunice i Univerzitní kampus MU. Lokalita je bohatá na zeleň – v okolí je několik parků i přírodních ploch ideálních k procházkám a odpočinku.
Průkaz energetické náročnosti je ve zpracování, uvádíme tedy nyní v souladu s právními předpisy energetickou třídu G. Majitel si vyhrazuje právo zvolit kupujícího na základě jím stanovených kritérií. Všechny uvedené údaje mají pouze informativní charakter a nepředstavují nabídku ve smyslu § 1731 nebo § 1732 občanského zákoníku, ani veřejný příslib dle § 1733 občanského zákoníku. Z této nabídky tak nevzniká nárok na uzavření smlouvy.