V zastoupení majitele Vám ke koupi nabízíme rodinný patrový dům o dispozici 4+1 s verandou, půdou a částečným podsklepením, který se nachází v klidné lokalitě na ul. Krátká jen pár minut chůze od centra města Klobouky u Brna.

Zákládní informace:
- podlahová plocha: 106 m2
- zastavěná plocha: 81 m2
- celková plocha pozemku (zast. ploch a nádvoří): 126 m2
- další plocha k užívání (na základě nájemní smlouvy od obce): 60 m2
- půda, částečně podsklepeno, na pozemku hospodářské stavení

Dispozice domu:
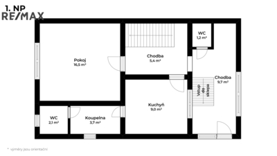
1.NP – prostorné zádveří se vstupem do sklepa, pokoj, kuchyně, koupelna s vanou, 2 x samostatná toaleta, 2x spíž
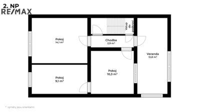
2.NP - tři pokoje, veranda, z chodby vstup na prostornou čistou půdu

Technický stav a vybavení:
- před cca 10 lety instalována plastová okna, v zádveří nová plastová okna a vstupní dveře (r. 2024)
- stropy kompletně zatepleny, dům zateplen ze severní strany
- napojeno na veřejný vodovod a kanalizaci, studna s užitkovou vodou
- na střeše solární panely – úspora energie a nižší provozní náklady
- elektřina 240/400 V (původní rozvody)
- ohřev vody elektrickým bojlerem
- vytápění plynovým kotlem (k budoucí výměně)
- přípojka kabelové TV
Dům je suchý, udržovaný, volný ihned.

Klobouky u Brna jsou atraktivní lokalitou s dominantou obce - historickým větrným mlýnem, ideální pro rodiny i milovníky přírody a historie. Výborná dopravní dostupnost – do Brna i Hodonína 30 min. autem, pravidelné autobusové spojení - zastávka IDS JMK (konečná zastávka i přestupní linky). V obci kompletní občanská vybavenost – mateřská a základní škola, gymnázium, MěSOŠ, zdravotní středisko, pošta, obchody, restaurace, sportoviště, v blízkosti domu pekárna, večerka, asijské bistro...

Neváhejte kontaktovat makléřku nabídky pro více informací či domluvení termínu prohlídky.

Všechny uvedené údaje mají pouze informativní charakter a nepředstavují nabídku ve smyslu § 1731 nebo § 1732 občanského zákoníku, ani veřejný příslib dle § 1733 občanského zákoníku. Z této nabídky tak nevzniká nárok na uzavření smlouvy. Průkaz energetické náročnosti zatím nebyl předložen, uvádíme proto v souladu s právními předpisy energetickou třídu G. Majitel si vyhrazuje právo zvolit kupujícího na základě jím stanovených kritérií.

REMAX Brno
Realitní makléř Brno
Rrealitka Brno
REMAX Delux
Tomáš Šimek
Práce v realitách Brno
Prodej nemovitostí Brno
3061306.jpg
3061294.jpg
3061292.jpg
3061305.jpg
3061304.jpg
3061300.jpg
3061301.jpg
3061302.jpg
3061310.jpg
3061311.jpg
3061314.jpg
3061313.jpg
3061312.jpg
3061317.jpg
3061318.jpg
3061319.jpg
3061320.jpg
3061322.jpg
3061331.jpg
3061336.jpg
3061328.jpg
3061326.jpg
3061325.jpg
3061327.jpg
3061324.jpg
3061333.jpg
3061973.jpg