Dobrý den.

Hledáte prostory pro své podnikání?

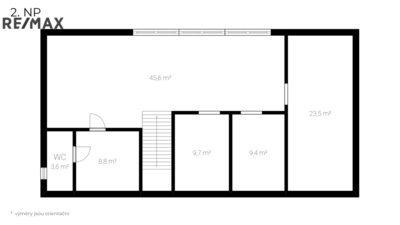
Rád bych Vám představil tyto obchodní prostory o celkové ploše 170m2, které se nachází v centru obce Dětmarovice na hlavním tahu mezi Bohumínem a Karvinou a disponuje rozsáhlým otevřeným prostorem v přízemí, dále v patře kancelářskými buňkami, šatnou a WC. Okolí domu disponuje další doplňkovou stavbou a prostorným dvorem.

Dům je určený k rekonstrukci.

Náklady na provoz nemovitosti jsou závislé na tarifu dodavatele a spotřebě majitele, vytápění je však zajištěno tepelným čerpadlem.

Nachází se jen pár kroků od pošty, obecního úřadu, obchodu s potravinami, autobusových zastávek a vlakového nádraží.

Dětmarovice jsou klidná obec v Moravskoslezském kraji, nedaleko Karviné, která nabízí příjemné bydlení v blízkosti přírody s výbornou dostupností do Ostravy. V obci najdete veškerou občanskou vybavenost včetně školy, školky, zdravotního střediska, obchodů, restaurací a sportovišť. Díky dobrému dopravnímu spojení a klidné atmosféře jsou Dětmarovice ideálním místem pro rodinné bydlení.

Dětmarovice leží v okrese Karviná a díky své poloze jsou dobře dostupné jak z okolních měst, tak i z Polska. Výhodou je přímé železniční spojení na trase Ostrava–Český Těšín a dobré napojení na hlavní silniční tahy, což ocení nejen zákazníci, ale i zaměstnanci nebo dodavatelé. V obci a jejím bezprostředním okolí se nachází kombinace obytné zástavby a průmyslových areálů, díky čemuž je zde stabilní pohyb lidí a přirozená poptávka po obchodech a službách. Pro podnikatele, kteří hledají provozovnu mimo centra velkých měst, ale nechtějí se vzdát dostupnosti a funkční infrastruktury, jsou Dětmarovice rozumnou a praktickou volbou.

Pokud Vás tato nemovitost zaujala, zavolejte mi ještě dnes a domluvte si termín Vaší prohlídky.

REMAX Brno
Realitní makléř Brno
Rrealitka Brno
REMAX Delux
Tomáš Šimek
Práce v realitách Brno
Prodej nemovitostí Brno
3164024.jpeg
3164014.jpeg
3164021.jpeg
3164016.jpeg
3164018.jpeg
3164019.jpeg
3164017.jpeg
3164020.jpeg
3164022.jpeg
3164023.jpeg
3164026.jpeg
3164025.jpeg
3164027.jpeg
3164028.jpeg
3164029.jpeg
3164030.jpeg
3164031.jpeg
3164032.jpeg
3164033.jpeg
3164034.jpeg
3164037.jpeg
3164035.jpeg
3164038.jpeg
3164036.jpeg
3163995.jpeg
3164001.jpeg
3163996.jpeg
3163998.jpeg
3163997.jpeg
3164000.jpeg
3164005.jpeg
3164039.jpg
3164040.jpg