Brno , Brno-sever
| Číslo nabídky: 430625 | Plocha užitná: 49 | Kategorie: Byty |
| Podlaží umístění: 2 | Typ: Pronájem | Počet podlaží: 2 |
| Podkategorie: 2 + kk | Plyn: plynovod | Jednotka: za měsíc |
| Odpad: kanalizace | Voda: vodovod | Elektřina: 230 V |
| Stav objektu: Novostavba | Budova: Cihlová | Telekomunikace: Internet |
| Vlastnictví: Osobní | Doprava: vlak, dálnice, silnice, MHD, autobus | Energetický štítek: B |
| Kód nabídky: NP03442 |
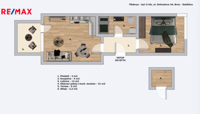
Hledáte nadstandardní plně vybavenou bytovou jednotku v novostavbě s balkónem (+ 5 m2), sklepem (+ 2 m2) a parkováním v nádherné lokalitě kousek od centra Brna?
Tato krásně prosvětlená bytová jednotka o dispozici 2+kk a celkové podlahové ploše téměř 50 m2 je plně vybavená a když říkám vybavená, tak tím myslím opravdu luxusně vybavená.
Veškerý vestavěný nábytek je značky Hanák.
Pohodlná pohovka v obývacím pokoji, TV, stůl s židlemi, kuchyňská linka s vestavěnými spotřebiči i obraz, který dotváří pozitivní atmosféru domova.
Koupelna se sprchovým koutem, toaletou, umyvadlem, ručníky, skříňkou, zrcadlem, osvětlením i pračkou se sušičkou.
Ložnice s vestavěnou skříní přes celou jednu stěnu, menší skříňkou, nočním stolkem s lampou, postel s úplně novými matracemi, peřinami i povlečením, jednu ze stěn rovněž zdobí příjemný obraz.
Součástí nájmu jsou i veškeré vysoce kvalitní kuchyňské spotřebiče jako myčka, indukční varná deska, digestoř, trouba s mikrovlnnou troubou v jednom, varná konvice, vestavěná lednice s mrazničkou
Nechybí ani úklidové prostředky a vysavač Kärcher.
Určitě velmi oceníte příjemné posezení na balkóně se dvěma křesílky, stolečkem a velkou markýzou, která Vás ochrání před ostrým letním sluncem… pokud by to nestačilo, tak klimatizační jednotka v obývacím pokoji i ložnici, Vás zchladí spolehlivě. V bytě je dále podlahové vytápění, krásná dřevěná podlaha a designové bezfalcové vysoké dveře.
Byt je tedy ideální, pokud se chcete stěhovat pouze s kufrem plným oblečení, protože vybavena základním nádobím je i kuchyňská linka. Nepotřebujete tedy v podstatě nic…jen sebe a chuť naplnit byt svou přítomností a vychutnat si příjemné bydlení.
Součástí nájmu je i prostorný sklep, vybavený masivním policovým systémem a držáky na kola.
Parkování je k dispozici před domem.
Měsíční náklady:
elektřina 1.500,- Kč, plyn 2.000,- Kč, internet 500,- Kč, voda 700,- Kč, soukromé parkovací stání 500,- Kč.
Umístění bytu je přímo dokonalé v krásně zelené části Brna Soběšic.
Kousek od bytové jednotky je několik mateřských škol, dětské hřiště, základní škola, potraviny Brněnka, restaurace i příjemná kavárna. Veškerá občanská vybavenost je ve velmi blízkém okolí. Pokud navíc milujete procházky lesem, cyklostezky i jízdu na koních, tak Panská lícha je vzdálena pouhých 20 minut chůze od domu.
Skvělá dostupnost do okolních částí Brna, za 15 minut jste autem v centru města.
Spoje MHD fungují rovněž výborně a jsou dvě minuty pěšky od bytu.
Zaujala Vás tato nabídka a přejete si být prvním nájemníkem dokonalého bytu?
Neváhejte mě kontaktovat, moc ráda Vás provedu.
Nina Tedová
REMAX Delux