Habrovany
| Číslo nabídky: 431054 | Kategorie: Pozemky | Typ: Prodej |
| Jednotka: za nemovitost | Kód nabídky: NP03456 |
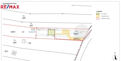
Nabízíme k prodeji pozemek o celkové výměře 2 229 m², nacházející se bezprostředně za hranicí města Rousínov, v katastrálním území Habrovany, okres Vyškov. Poloha pozemku umožňuje využívat kompletní občanskou vybavenost města Rousínov, přesto nabízí klidné prostředí mimo zastavěnou část města.
Pozemek je katastrem nemovitostí veden jako zahrada, dle územního plánu je součástí ploch pro rekreační bydlení. Přístup je zajištěn po obecní komunikaci. Na hranici pozemku se nachází přípojka elektřiny. Terén je mírně svažitý, což umožnuje krásné výhledy do okolní krajiny.
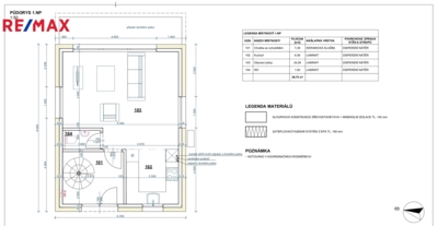
Byla zpracována projektová dokumentace rekreačního domku určeného k celoročnímu bydlení, hydrogeologický posudek pro vrtanou studnu jako budoucí zdroj vody a posudek k likvidaci a předčištění odpadních vod z domácí ČOV přímo na pozemku. Veškerá dostupná dokumentace bude zájemcům k dispozici.
Pozemek se nachází v lokalitě s velmi dobrou dopravní dostupností. Město Rousínov je v bezprostřední blízkosti a nabízí kompletní občanskou vybavenost. Město Vyškov je dostupné přibližně do 10–15 minut jízdy autem. Nájezd na dálnici D1 je vzdálen zhruba 5 km. Okraj města Brna je dosažitelný přibližně do 15 minut jízdy autem.
Neváhejte kontaktovat makléřku nabídky pro doplňující informace a domluvení termínu prohlídky.