
NEDOSTUPNÉ

NEDOSTUPNÉ

NEDOSTUPNÉ

NEDOSTUPNÉ
Nedostupné
327 m²
327 m²
Stříbrnice
Pozemky
Nedostupné - nevolat
Prodej pozemku pro bydlení, 327 m2, Stříbrnice
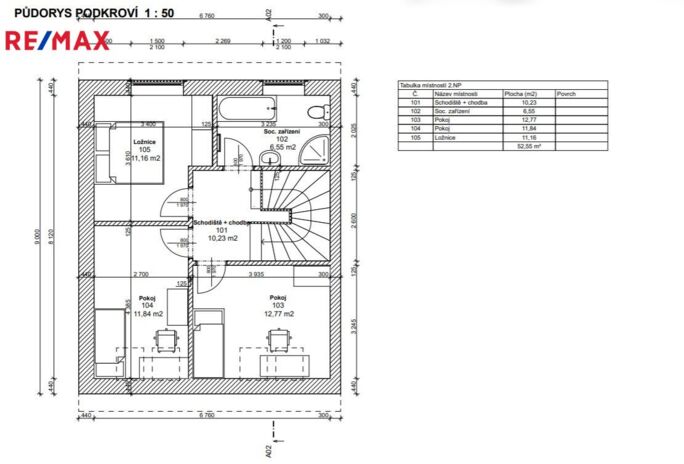
Jedná se o stavební pozemek včetně projektu a stavebního povolení cihlové novostavby o dvou nadzemních podlažích. Dům je dispozičně řešen jako 4+kk o užitné ploše 108m2. Celková velikost pozemku je 327m2. Před každým domem vznikne prostor pro parkovací stání. V přízemí domu se nachází zádveří, WC, prostorný obývací pokoj s kuchyňským koutem a francouzským oknem do zahrady, technická místnost a schodiště. V patře domu najdeme velkou ložnici, dva dětské pokoje a prostornou koupelnu s vanou a se záchodem. Uvedená cena 1 700.000,- Kč obsahuje stavební pozemek p.č. 2355 a p.č.1260/1, projekt s vydaným stavebním povolením, přípojky. V případě potřeby je možnost projekt ev. přepracovat.
Stříbrnice jsou obec v okrese Uherské Hradiště ve Zlínském kraji, 11 km západně od Uherského Hradiště, v údolí Medlovického potoka. Žije zde 426 obyvatel
V případě více zájemců bude nemovitost prodána nejlepší nabídce a majitel si vyhrazuje vybrat kupujícího na základě jim zvolených kritérií.
Stříbrnice jsou obec v okrese Uherské Hradiště ve Zlínském kraji, 11 km západně od Uherského Hradiště, v údolí Medlovického potoka. Žije zde 426 obyvatel
V případě více zájemců bude nemovitost prodána nejlepší nabídce a majitel si vyhrazuje vybrat kupujícího na základě jim zvolených kritérií.
Číslo nabídky:349640
Kategorie:Pozemky
Typ:Prodej
Jednotka:za nemovitost
G - Není vyhotoven
Chci prohlídku nemovitosti nebo více informací.
Domluvte si prohlídku na nemovitosti anebo se mě na cokoliv zeptejte, rád vám poradím.

































































































































































