
NEDOSTUPNÉ

NEDOSTUPNÉ

NEDOSTUPNÉ

NEDOSTUPNÉ

NEDOSTUPNÉ

NEDOSTUPNÉ

NEDOSTUPNÉ

NEDOSTUPNÉ

NEDOSTUPNÉ

NEDOSTUPNÉ

NEDOSTUPNÉ

NEDOSTUPNÉ

NEDOSTUPNÉ

NEDOSTUPNÉ

NEDOSTUPNÉ

NEDOSTUPNÉ

NEDOSTUPNÉ

NEDOSTUPNÉ

NEDOSTUPNÉ

NEDOSTUPNÉ

NEDOSTUPNÉ

NEDOSTUPNÉ

NEDOSTUPNÉ

NEDOSTUPNÉ

NEDOSTUPNÉ

NEDOSTUPNÉ

NEDOSTUPNÉ

NEDOSTUPNÉ
Nedostupné
330 m²
1202 m²
Brno
Komerční
Nedostupné - nevolat
Prodej skladu, 1202 m2, Brno
V přímém zastoupení majitele vám nabízíme možnost koupě komerčního objektu v Brně Slatině na ulici Hviezdoslavova.
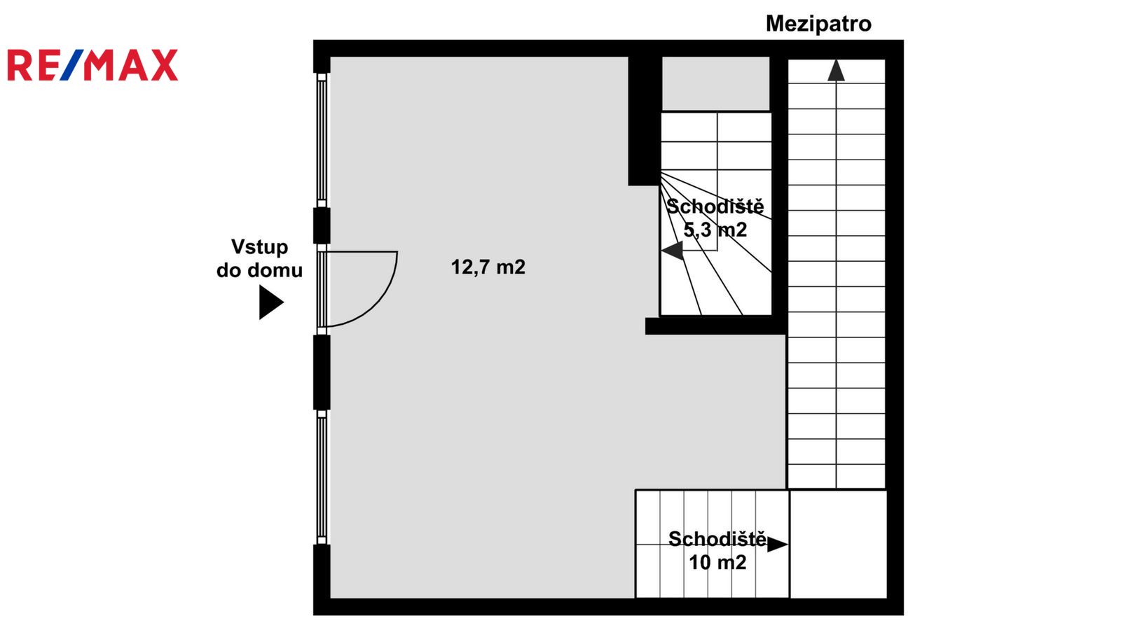
Objekt se skládá z přízemí a patra. Přičemž každé z podlaží má možnost samostatného vstupu. Celková užitná plocha objektu je cca 330m2.
V přízemí domu se aktuálně nachází dílna, skladovací prostory, kuchyňka, sociální zařízení, sklep a kotelna. Následuje menší mezipatro se vstupní halou a schody do 1. patra. Zde najdeme kancelářské prostory, kuchyňku, sociální zařízení, a dílnu.
Samotný objekt je ve velmi dobrém technickém stavu.
Přibližně před 3 lety proběhla rozsáhlejší rekonstrukce v podobě výměny všech oken, kompletní výměna elektroinstalace, vody, topné soustavy a vystavění sádrokartonových příček mezi jednotlivými místnostmi. O vytápění celého objektu se starají dva nové plynové kotle. Ohřev vody pak řešen pomocí průtokových ohřívačů.
Budova stojí na pozemku p.č. 2952/5 v k.ú. Slatina, který je v současné době v majetku Statutárního města Brna s tím, že současný vlastník má jíž od města souhlas s odkupem části pozemku pod budovou. Tento pozemek je kompletně oplocený a současný vlastník jej využívá na základě platné nájemní smlouvy s městem. Aktuální výše měsíčního nájmu činí 12.696,-kč. Se souhlasem města, lze tento pozemek dále podnajmout a tím snížit náklady na nájemné.
Celkové měsíční náklady na provoz budovy činí 7.890,-kč Z toho 4.510,-kč jako zálohy na dodávku plynu, 3.180,-kč zálohy na elektřinu a 200,-kč jako záloha na vodné / stočné.
Hlavním benefitem budovy je její umístění a poloha v průmyslové zóně. Bezproblémový příjezd pro zásobování i kamionovou dopravu. Výborná dostupnost z dálnice D1 i do samotného centra města.
Průkaz energetické náročnosti v tuto chvíli není k dispozici, proto uvádíme třídu G.
Majitel si vyhrazuje právo vybrat konečného zájemce dle jím zvolených kritérií.
Uvedená cena je včetně odměny RK a kompletního realitního servisu.
Více informací a sjednání termínu prohlídky vám rád sdělím po telefonické domluvě případně emailu.
Objekt se skládá z přízemí a patra. Přičemž každé z podlaží má možnost samostatného vstupu. Celková užitná plocha objektu je cca 330m2.
V přízemí domu se aktuálně nachází dílna, skladovací prostory, kuchyňka, sociální zařízení, sklep a kotelna. Následuje menší mezipatro se vstupní halou a schody do 1. patra. Zde najdeme kancelářské prostory, kuchyňku, sociální zařízení, a dílnu.
Samotný objekt je ve velmi dobrém technickém stavu.
Přibližně před 3 lety proběhla rozsáhlejší rekonstrukce v podobě výměny všech oken, kompletní výměna elektroinstalace, vody, topné soustavy a vystavění sádrokartonových příček mezi jednotlivými místnostmi. O vytápění celého objektu se starají dva nové plynové kotle. Ohřev vody pak řešen pomocí průtokových ohřívačů.
Budova stojí na pozemku p.č. 2952/5 v k.ú. Slatina, který je v současné době v majetku Statutárního města Brna s tím, že současný vlastník má jíž od města souhlas s odkupem části pozemku pod budovou. Tento pozemek je kompletně oplocený a současný vlastník jej využívá na základě platné nájemní smlouvy s městem. Aktuální výše měsíčního nájmu činí 12.696,-kč. Se souhlasem města, lze tento pozemek dále podnajmout a tím snížit náklady na nájemné.
Celkové měsíční náklady na provoz budovy činí 7.890,-kč Z toho 4.510,-kč jako zálohy na dodávku plynu, 3.180,-kč zálohy na elektřinu a 200,-kč jako záloha na vodné / stočné.
Hlavním benefitem budovy je její umístění a poloha v průmyslové zóně. Bezproblémový příjezd pro zásobování i kamionovou dopravu. Výborná dostupnost z dálnice D1 i do samotného centra města.
Průkaz energetické náročnosti v tuto chvíli není k dispozici, proto uvádíme třídu G.
Majitel si vyhrazuje právo vybrat konečného zájemce dle jím zvolených kritérií.
Uvedená cena je včetně odměny RK a kompletního realitního servisu.
Více informací a sjednání termínu prohlídky vám rád sdělím po telefonické domluvě případně emailu.
Číslo nabídky:361331
Plocha užitná:330
Kategorie:Komerční objekty
Typ:Prodej
Počet podlaží:2
Jednotka:za nemovitost
Stav objektu:velmi dobrý
Budova:cihlová
G - Není vyhotoven
Chci prohlídku nemovitosti nebo více informací.
Domluvte si prohlídku na nemovitosti anebo se mě na cokoliv zeptejte, rád vám poradím.

































































































































































































































































