








































4 600 000 Kč
145 m²
708 m²
Vejprty
Domy
Prodej rodinného domu, 145 m2, Vejprty
Exkluzivně vám nabízíme patrový dům ideální pro rodinu s dětmi se zahradou ve Vejprtech, ulice Husova.
Patrový dům s parkovacími místy a garáží poskytuje ideální místo k bydlení pro celou rodinu. Se zastavěnou plochou 112 m² domu a užitnou plochou 145 m² nabízí dostatek prostoru pro vaše bydlení.
Pozemek je členěn na dvě části s rovinatým i svažitým terénem o rozloze 547 m² a poskytne vám i dětem dostatek místa a zároveň pobyt na čerstvém horském vzduchu.
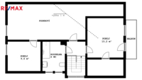
V přízemí domu je vstupní chodba s WC, zádveří se samostatně průchozí kuchyní, obývacím pokojem a ložnicí. Z kuchyně se dostanete do jídelny a na zahradu. Za obývacím pokojem je vstup do menší "zimní zahrady". Celková plocha přízemí činí 92 m².
V patře je koupelna, pokoj s balkónem a dvě podkrovní místnosti o užitné ploše 53 m².
Ve sklepě je pračka a bojler, kotel na tuhá paliva, spižírna a komora na uhlí.
V rámci obce máte vše na dosah, ať už se jedná o základní nebo mateřskou školu, poštu, obchody a restaurace. Dopravní dostupnost je na výborné úrovni i v zimě. Ski areál Klínovec je vzdálen pouhých 10 minut autem.
Zateplený dům s novou střešní krytinou a plastovými okny je ve velmi dobrém stavu a bez nutnosti rekonstrukcí máte možnost ihned spokojeně bydlet.
Vytápění zajišťuje kotel na tuhá paliva se zásobníkem, který vám zajistí teplo na 5 dní po doplnění. Dům je také vybaven kamerovým systémem a alarmem.
Pro rodiny hledající bydlení na horách s důrazem na dostatek prostoru je tato nemovitost ideální volbou.
S financováním vám pomůže naše hypoteční specialistka. Doporučuji osobní prohlídku.
Patrový dům s parkovacími místy a garáží poskytuje ideální místo k bydlení pro celou rodinu. Se zastavěnou plochou 112 m² domu a užitnou plochou 145 m² nabízí dostatek prostoru pro vaše bydlení.
Pozemek je členěn na dvě části s rovinatým i svažitým terénem o rozloze 547 m² a poskytne vám i dětem dostatek místa a zároveň pobyt na čerstvém horském vzduchu.
V přízemí domu je vstupní chodba s WC, zádveří se samostatně průchozí kuchyní, obývacím pokojem a ložnicí. Z kuchyně se dostanete do jídelny a na zahradu. Za obývacím pokojem je vstup do menší "zimní zahrady". Celková plocha přízemí činí 92 m².
V patře je koupelna, pokoj s balkónem a dvě podkrovní místnosti o užitné ploše 53 m².
Ve sklepě je pračka a bojler, kotel na tuhá paliva, spižírna a komora na uhlí.
V rámci obce máte vše na dosah, ať už se jedná o základní nebo mateřskou školu, poštu, obchody a restaurace. Dopravní dostupnost je na výborné úrovni i v zimě. Ski areál Klínovec je vzdálen pouhých 10 minut autem.
Zateplený dům s novou střešní krytinou a plastovými okny je ve velmi dobrém stavu a bez nutnosti rekonstrukcí máte možnost ihned spokojeně bydlet.
Vytápění zajišťuje kotel na tuhá paliva se zásobníkem, který vám zajistí teplo na 5 dní po doplnění. Dům je také vybaven kamerovým systémem a alarmem.
Pro rodiny hledající bydlení na horách s důrazem na dostatek prostoru je tato nemovitost ideální volbou.
S financováním vám pomůže naše hypoteční specialistka. Doporučuji osobní prohlídku.
Číslo nabídky:405799
Plocha užitná:145
Kategorie:Domy
Typ:Prodej
Počet podlaží:2
Jednotka:za nemovitost
Odpad:septik, jímka
Voda:vodovod
Elektřina:230 V
Stav objektu:Velmi dobrý
Budova:Smíšená
Telekomunikace:Internet
Doprava:vlak, silnice, autobus
Energetický štítek:G
Kód nabídky:NP08954
G - Mimořádně nehospodárná

Karel Krupa
Makléř
Hypoteční kalkulačka
Na kolik vás vyjde pořízení vlastního bydlení?
Chci prohlídku nemovitosti nebo více informací.
Domluvte si prohlídku na nemovitosti anebo se mě na cokoliv zeptejte, rád vám poradím.





















































































































































































