







































7 800 000 Kč
110 m²
368 m²
Starovičky
Domy
Prodej rodinného domu, 110 m2, Starovičky
Udržovaný řadový dům s nízkými měsíčními náklady.
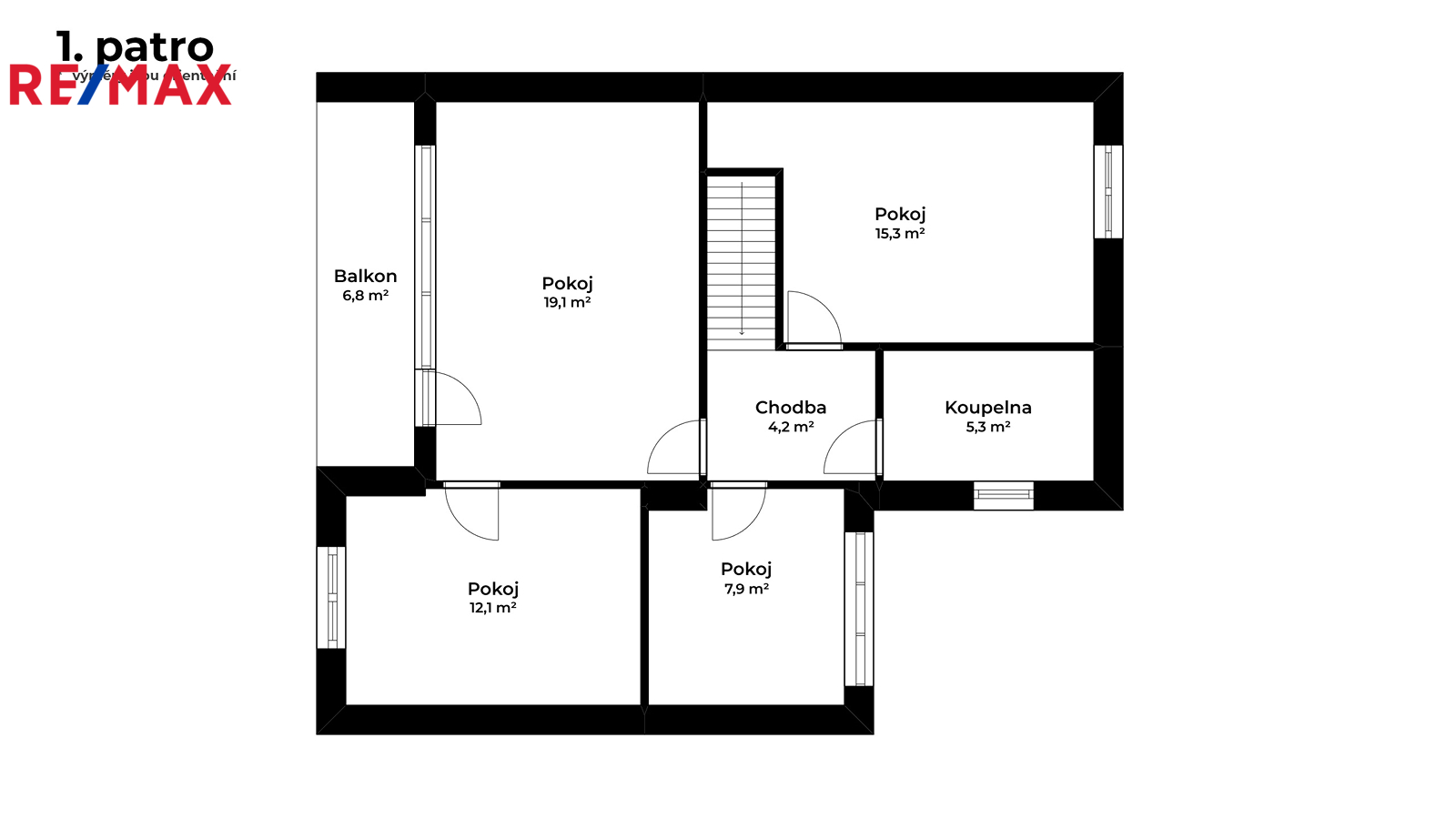
Ve výhradním zastoupení majitelů nabízím k prodeji zděný řadový dům o dispozici 5+1 v klidné části obce Starovičky. Dům je v dobrém technickém stavu a nevyžaduje žádné nutné rekonstrukce – ideální volba pro ty, kteří hledají pohodlné a prostorné bydlení s možností okamžitého nastěhování.
Technické informace:
• Dům je napojen na všechny inženýrské sítě
• Zdivo cihlové, stropy fošinkové, podlahy betonové
• Plochá střecha s hydroizolační fólií (cca 8 let stará)
• K dispozici je i voda ze studny na zalévání
Vytápění a ohřev vody:
• 1. patro je vytápěno plynovým kotlem s ohřevem vody (2 roky starý)
• Přízemí má samostatné vytápění krbovými kamny
Technické úpravy:
• Zateplení zadní části domu (polystyren 10 cm)
• Nová fasáda (cca 6 let)
• Plastové odpady (cca 5 let), rozvody vody v plastu (cca 4 roky)
Náklady na provoz:
• Elektřina: záloha 2.800 Kč/měsíčně, roční přeplatek cca 6.000 Kč
• Plyn: záloha 1.090 Kč/měsíčně
• Voda: cca 2.000 Kč 2x ročně
Další výhody:
• Garáž + tři parkovací místa přímo před domem
• Možnost příjezdu i k zadní části pozemku
• Dům je vhodný pro vícečlennou rodinu, podnikání nebo kombinaci obojího
• Klidná lokalita s výbornou dostupností do Hustopečí i dálnice D2
Část pozemku, na kterém stojí zemědělská stavba je ve vlastnictví České republiky. Je domluven odkup pozemku, nebo zůstává možnost nájmu, ročně cca 12.000 Kč.
Obec Starovičky se nachází v klidném prostředí, ideálním pro rodinný život, a nabízí dobrou dostupnost do okolních měst. V blízkosti se nachází veškerá občanská vybavenost a příležitosti pro aktivní trávení volného času. Obcí procházejí vinařské cyklostezky, nedaleko je vodní nádrž Nové Mlýny a Pavlovské vrchy.
Majitel si vyhrazuje právo vybrat kupujícího na základě jim zvolených kritérií. Veškeré zveřejněné údaje obsažené v tomto inzerátu mají pouze informativní charakter a nejsou nabídkou ve smyslu § 1731 nebo § 1732 občanského zákoníku, ani se nejedná o veřejný příslib dle § 1733 občanského zákoníku. Z této nabídky tak nikomu nevzniká nárok na uzavření smlouvy.
Ve výhradním zastoupení majitelů nabízím k prodeji zděný řadový dům o dispozici 5+1 v klidné části obce Starovičky. Dům je v dobrém technickém stavu a nevyžaduje žádné nutné rekonstrukce – ideální volba pro ty, kteří hledají pohodlné a prostorné bydlení s možností okamžitého nastěhování.
Technické informace:
• Dům je napojen na všechny inženýrské sítě
• Zdivo cihlové, stropy fošinkové, podlahy betonové
• Plochá střecha s hydroizolační fólií (cca 8 let stará)
• K dispozici je i voda ze studny na zalévání
Vytápění a ohřev vody:
• 1. patro je vytápěno plynovým kotlem s ohřevem vody (2 roky starý)
• Přízemí má samostatné vytápění krbovými kamny
Technické úpravy:
• Zateplení zadní části domu (polystyren 10 cm)
• Nová fasáda (cca 6 let)
• Plastové odpady (cca 5 let), rozvody vody v plastu (cca 4 roky)
Náklady na provoz:
• Elektřina: záloha 2.800 Kč/měsíčně, roční přeplatek cca 6.000 Kč
• Plyn: záloha 1.090 Kč/měsíčně
• Voda: cca 2.000 Kč 2x ročně
Další výhody:
• Garáž + tři parkovací místa přímo před domem
• Možnost příjezdu i k zadní části pozemku
• Dům je vhodný pro vícečlennou rodinu, podnikání nebo kombinaci obojího
• Klidná lokalita s výbornou dostupností do Hustopečí i dálnice D2
Část pozemku, na kterém stojí zemědělská stavba je ve vlastnictví České republiky. Je domluven odkup pozemku, nebo zůstává možnost nájmu, ročně cca 12.000 Kč.
Obec Starovičky se nachází v klidném prostředí, ideálním pro rodinný život, a nabízí dobrou dostupnost do okolních měst. V blízkosti se nachází veškerá občanská vybavenost a příležitosti pro aktivní trávení volného času. Obcí procházejí vinařské cyklostezky, nedaleko je vodní nádrž Nové Mlýny a Pavlovské vrchy.
Majitel si vyhrazuje právo vybrat kupujícího na základě jim zvolených kritérií. Veškeré zveřejněné údaje obsažené v tomto inzerátu mají pouze informativní charakter a nejsou nabídkou ve smyslu § 1731 nebo § 1732 občanského zákoníku, ani se nejedná o veřejný příslib dle § 1733 občanského zákoníku. Z této nabídky tak nikomu nevzniká nárok na uzavření smlouvy.
Číslo nabídky:411563
Plocha užitná:110
Kategorie:Domy
Typ:Prodej
Počet podlaží:3
Plyn:plynovod
Jednotka:za nemovitost
Odpad:kanalizace
Voda:vodovod
Elektřina:230 V, 400 V
Stav objektu:Dobrý
Budova:Smíšená
Doprava:dálnice, autobus
Energetický štítek:E
Kód nabídky:NP02985
E - Nehospodárná
Hypoteční kalkulačka
Na kolik vás vyjde pořízení vlastního bydlení?
Chci prohlídku nemovitosti nebo více informací.
Domluvte si prohlídku na nemovitosti anebo se mě na cokoliv zeptejte, rád vám poradím.








































































































































































































































