Prodej rodinného domu, 284 m2, Chrast
Pohodlné rodinné bydlení - dvougenerační bydlení - kombinace bydlení a podnikání - dobrá investice s možností pronájmu!
Hledáte-li ke koupi rodinný dům v blízkosti Chrudimi, který svou variabilitou a svými možnostmi splní všechny výše zmíněné kombinace, srdečně Vás zvu na prohlídku rodinného domu na adrese Jiráskova 116, Chrast.
Rodinný dům je situovaný jakožto rohový v řadové zástavbě na rovinatém pozemku o celkové výměře 483m2, skládá se celkem ze tří parcel. Dům zaujímá v rámci obce strategickou polohu v centru města, má vynikající viditelnost z hlavní komunikace s přímou návazností na centrální plochy obce a splňuje tak požadavky jak na bydlení s výbornou dostupností obchodů a služeb, tak i představy investičně laděných zájemců hledajících objekty vhodné k přebudování na nájemní bydlení.
Tvar pozemku je obdélníkový se stranami cca 46m x 12m, pozemek skýtá dostatek soukromí, neboť je od ulice oddělen hospodářskými stavbami a na ně navazující zdí. Velkou výhodou je možnost vjezdu na pozemek hned ze dvou stran přes uzamykatelné vjezdové brány. Hlavní objekt má půdorys písmene L a na své severovýchodní straně navazuje na sousední RD ulice Jiráskovy. Ve dvorní části je dům doplněn několika prostory hospodářského charakteru a také samostatně stojící dvougaráží (cca 38m2).
Dům je původně z roku 1966 s přestavbou v roce 1996, jedná se cihlovou stavbu o čtyřech podlažích (1.PP cca 50% z.p., 1.NP, 2.NP, půdní prostor cca 70% z.p.) s valbovou střechou. Celkově je dům ve funkčním a udržovaném stavu, nicméně pro plnohodnotné užívání nový majitel jistě přikročí k rekonstrukci či přinejmenším k modernizaci stavby. V současné době je objekt téměř zcela vyklizený.
Dům je napojený na všechny inženýrské sítě - elektřina, plyn, voda z řadu, kanalizace.
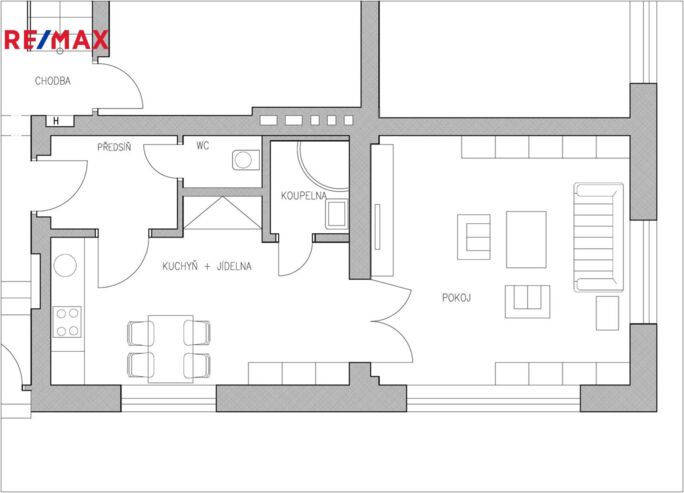
Dům jako celek lze dispozičně popsat jako 7+2, celkový obestavěný prostor je cca 902m3. Celková užitná plocha dle orientačního měření je cca 176m2 za hlavní dvě obytná podlaží + půda (při využitelnosti cca 70% = cca 63m2) + sklep cca 50% zastavěné plochy = cca 45m2. Celkem tedy cca 284m2.
Stejně tak ovšem můžeme patra oddělit a smýšlet o přízemí jako o samostatném 3+1+spíž+veranda a o 2.NP jako o samostatném 4+1+spíž, kdy by každý byt měl cca 90m2. Obě patra mají svou kuchyni a sociální zařízení.
Dispozice včetně orientačních výměr:
1.PP - sklep
cca 45m2
1.NP
-pokoj 13m2
-kuchyně 14,1m2
-pokoj 14,8m2
-ložnice 13,6m2
-veranda 8,1m2
-špajz 2,6m2
-WC 2,5m2
-koupelna 4,8m2
-chodba a schodiště 14m2
2.NP
-pokoj 14,1m2
-kuchyně 13m2
-pokoj 14,8m2
-ložnice 13,6m2
-pokoj (sušárna) 10,8m2
-špajz 2,7m2
-WC 2,5m2
-koupelna 5m2
-chodba a schodiště 16m2
3.NP - podkroví
Půdní prostor s teoretickou podlahovou plochou cca 70% výměry obytných pater, tedy cca 63m2.
jednotlivé parcely celku:
-p.č. st. 19 - zastavěná plocha a nádvoří - 272m2
-p.č. 57 - zahrada - 202m2
-p.č. 1189 - ostatní plocha - 9m2
Pro více informací a Váš termín prohlídky mě prosím kontaktujte na uvedeném telefonu nebo emailu. PENB v řešení.