














































Exkluzivně nabízíme k prodeji přízemní řadový dům o dispozici 3+kk v atraktivní lokalitě Dolních Věstonic, proslulé svou bohatou historií, vinařskou tradicí a okouzlující přírodou v okolí Pálavy a vodní nádrže Nové Mlýny.
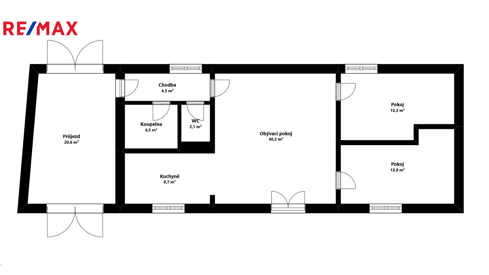
Dům disponuje podlahovou plochou 77,2 m² a nachází se na prostorném pozemku o celkové výměře 803 m². V domě najdete obývací pokoj s kuchyňským koutem, ložnici, pokoj, koupelnu a samostatný WC. Z obývacího pokoje je přímý vstup na zahradu, kde vás čeká altán a bazén, což nabízí skvělé místo pro odpočinek a rodinnou pohodu.
Dům je napojen na všechny inženýrské sítě – elektřinu, dálkový vodovod, kanalizaci a plyn. O vytápění a ohřev vody se stará plynový kotel, což zajišťuje komfortní bydlení po celý rok. V domě je také klimatizace, která přijde vhod v horkých letních měsících.
Lokalita Dolní Věstonice je velmi žádaná a známá svou vinařskou tradicí a bohatou historií. Obec s výhledem na Pálavu a výbornou dostupností do okolí nabízí skvělé možnosti pro volnočasové aktivity – cyklostezky, rybaření nebo návštěvy kulturních památek v Lednici či Mikulově. V nedalekých Pasohlávkách jsou populární termální lázně, Aquapark a největší kemp v ČR - Merkur Pasohlávky. Výhodou je skvělá dopravní dostupnost: Brno je vzdálené pouhých 30 minut jízdy a do Mikulova se dostanete za 12 minut. V obci najdete základní školu, COOP potraviny, poštu, výdejní místo Zásilkovny, wellness hotel a další.
Pokud vás tento dům v Dolních Věstonicích zaujal, neváhejte mě kontaktovat pro další informace nebo sjednání prohlídky.
77
Domy
Prodej
1
plynovod
kanalizace
dálkový vodovod
230 V
Dobrý
ústřední plynové, Klimatizace
Smíšená
autobus
Dolní Věstonice jsou jedinečnou lokalitou pro život, která kombinuje bohatou historii, krásnou přírodu a tradiční vinařskou oblast. Obec se nachází přímo pod Pálavou, což poskytuje nádherný výhled a skvělé podmínky pro pěší turistiku či cykloturistiku. V blízkosti je vodní nádrž Nové Mlýny, oblíbená destinace pro rybáře, milovníky vodních sportů i relaxace.
Tato malebná obec je známá nejen svými archeologickými nálezy, ale také kvalitním vínem a ideální polohou – Brno je vzdálené pouhých 30 minut a do Mikulova dojedete za 12 minut. V okolí najdete množství vinařských sklípků, cyklostezek a kulturních památek, například Lednicko-valtický areál.
Dolní Věstonice jsou ideální volbou pro ty, kteří hledají klidné bydlení s možností aktivního trávení volného času, aniž by museli obětovat dostupnost městské infrastruktury. V obci se nachází základní škola, pošta, wellness hotel a další služby, které zajišťují pohodlné bydlení pro celou rodinu.


