





























Domy
Prodej
1
132
Cihlová
Před rekonstrukcí
Kanalizace
Vodovod
230 V, 400 V
Silnice, autobus
Dobrý
Nabízím k prodeji samostatný cihlový rodinný dům v malebné obci Seč, na adrese ulice K Přehradě, která je oddělena od hlavního tahu a nabízí tak dostatek soukromí a klidu. Dům se nachází v klidné lokalitě, přímo u vyhledávané Sečské přehrady, která láká k rekreaci, koupání, vodním sportům i procházkám v přírodě. Okolí nabízí krásné výhledy, romantické výlety k zřícenině hradu Oheb a pohodu daleko od městského shonu.
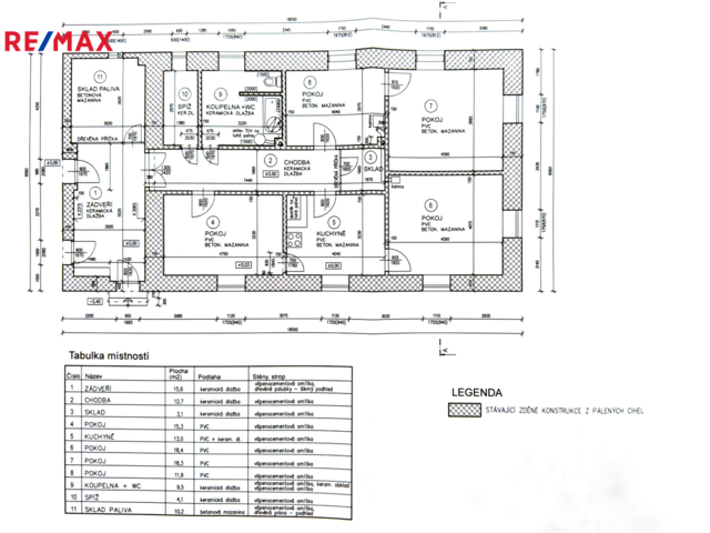
Tento přízemní cihlový dům o zastavěné ploše 177 m² a užitné ploše 132 m² je tvořen 5ti pokoji, což ho činí ideálním pro větší rodinu nebo pro využití jako investici. Na domě byla nedávno provedena nová fasáda a výměna střešní krytiny včetně klempířských prvků. Dále byla vyměněna většina oken za plastová, díky čemuž je zlepšena dlouhodobá ochrana domu a energetická úspornost. Dům je v předrekonstrukčním stavu uvnitř, takže jej lze upravit přesně podle vlastních představ.
Pozemek o celkové ploše 1 146 m² poskytuje dostatek prostoru pro zahradu, dětské hřiště, relaxační zóny nebo hobby aktivity.
Dům je napojen na městskou kanalizaci a vodovod, elektřinu, topení zajišťuje kotel na tuhá paliva v rámci rekonstrukce si však můžete zvolit vlastní řešení vytápění.
Seč je oblíbená lokalita s kompletní občanskou vybaveností. V obci najdete základní i mateřskou školu, zdravotní středisko, lékárnu, knihovnu, kulturní dům, poštu, obchody a služby, a zároveň zde funguje i dobré dopravní spojení autobusem i autem.
Díky blízkosti větších měst, jako je Chrudim či Pardubice, si užijete poklidného života, aniž byste byli odříznuti od veškerého komfortu.
Tento dům je ideální pro rodiny, které hledají klidné bydlení v krásné přírodě, pro ty, kdo chtějí vytvořit svůj vysněný domov, nebo pro investory hledající perspektivní nemovitost v atraktivní rekreační oblasti.
Neváhejte nás kontaktovat a domluvte si prohlídku, kde si můžete představit život v tomto kouzelném domě u Sečské přehrady.
----------
Majitel si vyhrazuje právo vybrat kupujícího na základě jim zvolených kritérií. Veškeré zveřejněné údaje obsažené v tomto inzerátu mají pouze informativní charakter a nejsou nabídkou ve smyslu § 1731 nebo § 1732 občanského zákoníku, ani se nejedná o veřejný příslib dle § 1733 občanského zákoníku. Z této nabídky tak nikomu nevzniká nárok na uzavření smlouvy. Berte prosím na vědomí, že uvedené míry mohou být pouze orientační.

Město Seč (německy Setsch) se nachází v okrese Chrudim v Pardubickém kraji. Žije zde přibližně 1 800 obyvatel. Na území města se nachází vodní nádrž Seč, vybudovaná na řece Chrudimce.
V okolí domu najdete spoustu možností pro rekreaci i aktivní odpočinek. Dominantou je vyhlášená Sečská přehrada, která láká ke koupání, vodním sportům i letnímu relaxu na pláži. Na své si přijdou i milovníci historie – jen kousek odtud se tyčí zřícenina hradu Oheb s nádherným výhledem na vodní hladinu, nebo zámek Seč s přilehlým parkem. Celá oblast leží v srdci Železných hor, chráněné krajinné oblasti s nespočtem turistických a cyklistických tras. Nechybí ani sportovní areály a dětská hřiště, takže Seč je ideálním místem jak pro rodinný život, tak pro odpočinek uprostřed přírody.
Sečská přehrada se nachází pouhé 2 minuty od domu. Na autobusovou zastávku to je 200 metrů a ve stejné vzdálenosti najdete i několik restaurací. I přes to, že vše máte hned u domu na dosah ruky, je dům umístěn v klidné boční ulici a nebude Vás tedy nic rušit od klidu.

