































17 900 000 Kč
245 m²
617 m²
Plzeň
Domy
Prodej rodinného domu, 245 m2, Plzeň
Nabízíme k prodeji exkluzivní vilu v žádané lokalitě města Plzně, konkrétně na Slovanech v Plzenecké ulici. Jedná se o čtyřpatrovou, kompletně zrekonstruovanou a nadstandardně vybavenou nemovitost, která nadchne i ty nejnáročnější klienty. Tato nemovitost nabízí nádherných 245 m2 podlahové plochy a 617 m2 pozemku, na kterém se nachází krytý a bezúdržbový bazén se slanou vodou, jedná se tedy o bezchlórovou filtraci. Déle je na pozemku zahradní domek, skleník a spousta dalšího prostoru k využití. Objekt je monitorován kamerovým systémem.
V domě je velice kvalitní tepelné čerpadlo IVT, které zajišťuje teplo i ohřev vody, podlahové topení je rozvedeno od suterénu až po podkroví. K ohřevu bazénu je použito samostatné tepelné čerpadlo značky Rapid. Každý detail byl promyšlen tak, aby splňoval vysoké nároky na komfort a pohodlí. Stav objektu je velmi dobrý, zateplení a kompletní rekonstrukce proběhla v roce 2013. Plyn je zaveden do domu, ale není využíván. Správnost zvolených technologií a materiálů k zateplení, potvrzují měsíční náklady na provoz domu, které jsou pouze okolo 7.000,- Kč.
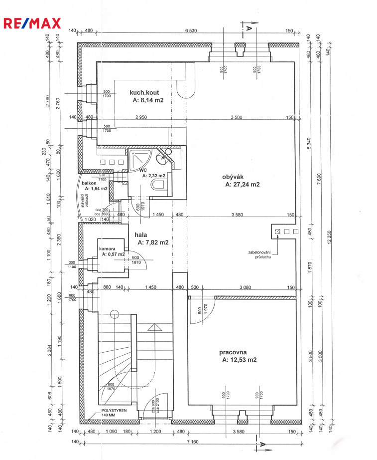
V suterénu domu se nachází prádelna s technickou místností, studený sklep, wc, prostorná párty místnost a wellness místnost se saunou, vířivkou a parní sprchou. V prvním nadzemním podlaží nalezneme vstupní halu, obývací pokoj s kuchyňským koutem, kancelář či pokoj, sprchu s toaletou a spíž. V druhém nadzemním podlaží se nachází pokoj, sprcha s toaletou, spíž a ložnice se vstupem do šatny a do koupelny, která vás uchvátí velikostí vany a nadchne shozem prádla do prádelny, která je v suterénu domu. Ve třetím nadzemním podlaží, tedy v podkroví je velká odpočinková místnost, kterou lze rozdělit na další dva pokoje, nebo zde vybudovat samostatný byt, jak zamýšleli majitelé, veškeré sítě jsou vyvedeny.
Nyní je dispozice domu 6+kk a rozdělením podkroví by mohla vzniknout dispozice 7+kk.
Umístění této vily v klidné rezidenční lokalitě je opravdu skvělé a nabízí kombinaci klidu a snadné dostupnosti do centra města. Parkovat lze na pozemku u domu. V blízkosti je veškerá občanská vybavenost, školy, školky, obchody, restaurace, MHD, plavecký bazén a sportovní hřiště. Nemovitost je samozřejmě možné využít i ke komerčním účelům.
Pokud jste nároční, máte velkou rodinu a chcete žít ve městě a zároveň v klidu, tak Vám tuto nemovitost ráda představím osobně.
V domě je velice kvalitní tepelné čerpadlo IVT, které zajišťuje teplo i ohřev vody, podlahové topení je rozvedeno od suterénu až po podkroví. K ohřevu bazénu je použito samostatné tepelné čerpadlo značky Rapid. Každý detail byl promyšlen tak, aby splňoval vysoké nároky na komfort a pohodlí. Stav objektu je velmi dobrý, zateplení a kompletní rekonstrukce proběhla v roce 2013. Plyn je zaveden do domu, ale není využíván. Správnost zvolených technologií a materiálů k zateplení, potvrzují měsíční náklady na provoz domu, které jsou pouze okolo 7.000,- Kč.
V suterénu domu se nachází prádelna s technickou místností, studený sklep, wc, prostorná párty místnost a wellness místnost se saunou, vířivkou a parní sprchou. V prvním nadzemním podlaží nalezneme vstupní halu, obývací pokoj s kuchyňským koutem, kancelář či pokoj, sprchu s toaletou a spíž. V druhém nadzemním podlaží se nachází pokoj, sprcha s toaletou, spíž a ložnice se vstupem do šatny a do koupelny, která vás uchvátí velikostí vany a nadchne shozem prádla do prádelny, která je v suterénu domu. Ve třetím nadzemním podlaží, tedy v podkroví je velká odpočinková místnost, kterou lze rozdělit na další dva pokoje, nebo zde vybudovat samostatný byt, jak zamýšleli majitelé, veškeré sítě jsou vyvedeny.
Nyní je dispozice domu 6+kk a rozdělením podkroví by mohla vzniknout dispozice 7+kk.
Umístění této vily v klidné rezidenční lokalitě je opravdu skvělé a nabízí kombinaci klidu a snadné dostupnosti do centra města. Parkovat lze na pozemku u domu. V blízkosti je veškerá občanská vybavenost, školy, školky, obchody, restaurace, MHD, plavecký bazén a sportovní hřiště. Nemovitost je samozřejmě možné využít i ke komerčním účelům.
Pokud jste nároční, máte velkou rodinu a chcete žít ve městě a zároveň v klidu, tak Vám tuto nemovitost ráda představím osobně.
Číslo nabídky:409954
Plocha užitná:245
Kategorie:Domy
Typ:Prodej
Počet podlaží:4
Jednotka:za nemovitost
Odpad:kanalizace
Voda:vodovod
Elektřina:230 V, 400 V
Stav objektu:Velmi dobrý
Budova:Cihlová
Telekomunikace:Internet
Doprava:vlak, dálnice, silnice, MHD, autobus
Energetický štítek:C
Kód nabídky:NP04612
C - Úsporná

Petra Palušná
Makléř
Hypoteční kalkulačka
Na kolik vás vyjde pořízení vlastního bydlení?
Chci prohlídku nemovitosti nebo více informací.
Domluvte si prohlídku na nemovitosti anebo se mě na cokoliv zeptejte, rád vám poradím.











































































































































































