Prodej rodinného domu, 135 m2, Mikulov
Srdečně Vás vítám na tomto skvostném místě, v samém srdci krásné Pálavy, v Mikulově.
Místo nabízející nám nekonečnou řadu kulturního vyžití mnoha architektonických památek, pro milovníky přírody i aktivního odpočinku.
Ve výhradním zastoupení majitele si Vám dovoluji nabídnout ke koupi krásný rodinný dům se zahradou, na velmi příjemném a klidném místě, na ulici Lidická.
Rodinný dům svojí polohou je situován na jihozápad a jeho část se nachází v památkově chráněném území.
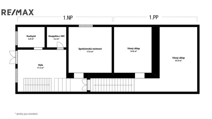
Celková výměra pozemku čítá 566 m2. Dům má zastavěnou plochu a nádvoří o výměře 288 m2 a zahrada domu se pak rozkládá na svých 278 m2.
Ke každému rodinnému domu se pojí bohatá a výjimečná historie. Stejně tak je tomu i tady.
Výstavba rodinného domu se datuje k roku 1930. Byl postaven z pálené cihly. Své kouzlo zde mají zachovány původní stropy, se svojí výškou 3 metry. Střecha domu je po rekonstrukci, a to v roce 1973.
Dům má jedno nadzemní podlaží a jeho aktuální dispozice nabízí dvě bytové jednotky.
První z nich o velikosti 2+kk a výměře 56 m2, prošla kompletní rekonstrukcí v roce 2019.
Ta zahrnovala plastová okna, vstupní dveře, elektroinstalaci v mědi, plynové a vodovodní rozvody. Jsou zde nové dýhované dveře, byly instalovány plovoucí podlahy laminátové a keramická dlažba.
Nachází se zde vstupní hala, o výměře 4,83 m2. Chodba, o výměře 7,74 m2, z níž plynule vstoupíme do ložnice a koupelny s rohovou vanou.
Výměra ložnice je 13,62 m2, koupelny pak 3,87 m2.
Druhá samostatná koupelna, s masážním sprchovým koutem, skleněnou zástěnou a toaletou, o výměře 4 m2.
Kuchyňská část propojena s obývacím pokojem a jídelním koutem poskytuje dostatek prostoru a světlosti, výměra je 17,79 m2.
Výměra kuchyňského koutu je 4,16 m2. Kuchyňská linka byla vyrobena na zakázku, tvoří ji kombinovaná mraznička a chladnička zn. Mora, elektrická trouba se sklokeramickou deskou zn. Mora a myčka nádobí zn. Gorenje.
O teplo domova, a ohřev teplé vody se nám postará plynový kotel značky Ariston.
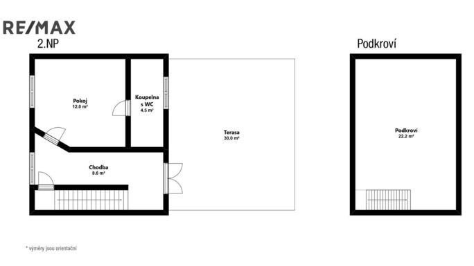
Druhá část přízemí domu, v původním stavu, disponuje prostornou chodbou, se vstupem na terasu, do sklepního prostoru, pokojem s kuchyní, a samostatnou toaletu.
Zadní část domu tvoří dvůr s průchodem do zahrady.
Součástí jsou hospodářská stavení, garáž a rodinný dům je podsklepen.
Věřím, že oceníte volný přístup do domu ze zadní části zahrady, kde vede samostatná a přístupná komunikace.
Nabízený rodinný dům bude prodáván společně s vybavením.
Dům je napojený na všechny inženýrské sítě, rozvody elektřiny jsou v mědi. Kanalizace je veřejná.
Náklady na bydlení činí: 5.120,- Kč/měsíčně a zahrnují: plyn 2.870,- Kč - topení a ohřev vody, elektřina 1.450,- Kč, vodné a stočné 800,- Kč.
Nabízená nemovitost poskytuje neomezenou řadu projektových možností.
Můžeme ji využít ke klidnému rodinnému bydlení, avšak také s možností k podnikatelským účelům. Prodávající si vyhrazuje právo vybrat kupujícího na základě jim zvolených kritérií.
Pokud Vás tento rodinný dům zaujal, neváhejte mne kontaktovat. Budu se těšit na setkání s Vámi.