Moderní byt 2+1 po kompletní rekonstrukci v Břeclavi – ideální jako první bydlení nebo investice.
Hledáte nově zrekonstruované bydlení, kde vše voní novotou? Nebo zvažujete bezpečné zhodnocení svých financí? Tento byt 2+1 na klidném okraji sídliště v Břeclavi nabízí obojí.
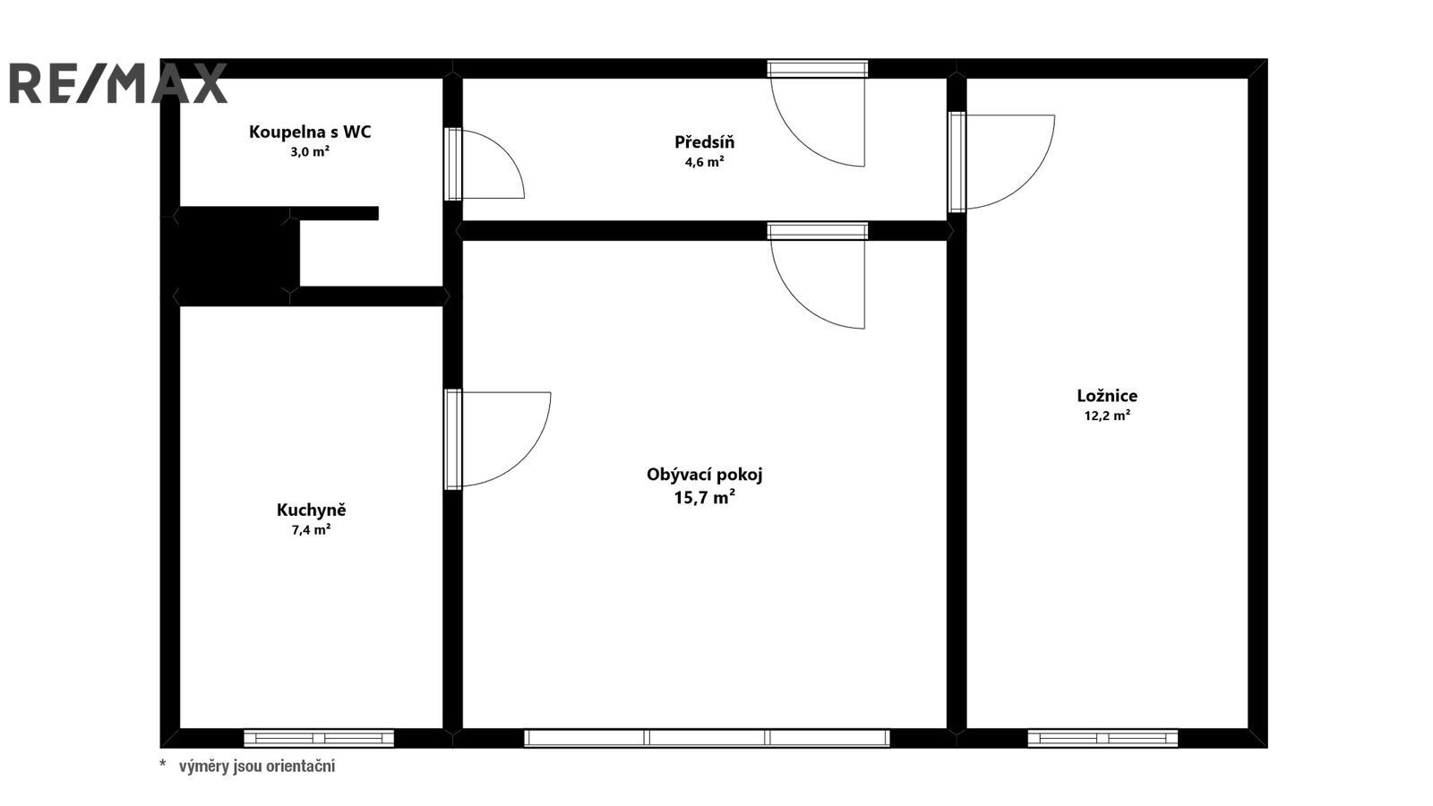
Bytová jednotka o výměře cca 45 m² prošla kompletní a kvalitní rekonstrukcí, která splňuje nároky na moderní a pohodlné bydlení. Mezi hlavní úpravy patří:
✔️ Kuchyně na míru s novými spotřebiči (digestoř, lednice, trouba, varná deska).
✔️ Zděná koupelna se sprchovým koutem a závěsným WC.
✔️ Nové interiérové dveře se zárubněmi v moderním designu.
✔️ Kompletně nová elektroinstalace včetně revize.
✔️ Kvalitní laminátové podlahy na perfektně srovnaném podkladu.
✔️ Vyrovnané stěny a snížené podhledy, které dodávají interiéru moderní vzhled.
Byt disponuje sklepní kójí, kam si můžete uložit například sezónní věci nebo pneumatiky.
Byt se nachází v panelovém domě ve velmi dobrém technickém stavu, na okraji sídliště s výhledem na hřiště. Lokalita nabízí vše potřebné pro pohodlný život:
✔️ Občanská vybavenost: Autobusová zastávka, Penny Market, večerka, zdravotnické středisko, lékárna, kavárna.
✔️ Volnočasové aktivity: Posilovna, badminton, sauna, wellness, tenisové kurty.
Navíc společenství vlastníků zodpovědně hospodaří a v nejbližší době plánuje novou fasádu budovy, která zvýší hodnotu nemovitosti a sníží náklady na provoz.
Tento byt je ideální volbou pro ty, kteří hledají dostupné a komfortní bydlení. Zároveň představuje zajímavou investiční příležitost.
Pro více informací nebo domluvení prohlídky mě neváhejte kontaktovat.





























45
Byty
2
6
Prodej
2 + 1
kanalizace
vodovod
230 V
Velmi dobrý
Panelová
Osobní
Skvělá dostupnost
Břeclav leží na hlavní železniční trase mezi Brnem a Vídní, takže se snadno dostanete tam i zpět – do Brna za necelých 40 minut, do Vídně za cca hodinu. Pokud jezdíte autem, oceníte blízký nájezd na dálnici D2.
Vše, co k životu potřebujete, máte po ruce
Školy, školky, lékaři, obchody nebo sportoviště – v Břeclavi najdete vše, co si od města můžete přát. Ať už plánujete rodinný život, nebo hledáte místo, kde se dá pohodlně žít, Břeclav vás nezklame.
Příroda za rohem
Břeclav je vstupní brána do Lednicko-valtického areálu, nádherné krajiny zapsané na seznamu UNESCO. Místní zámky, rybníky a parky stojí za to objevovat – ať už na kole nebo pěšky.
Místní kultura a dobré víno
Břeclav je domovem moravských tradic a výborného vína. Během roku tu najdete spoustu akcí – od folklorních slavností až po vinařské festivaly. Užijete si skvělou atmosféru, kterou tento region nabízí.


