




































Doporučuji zhlédnou videoprohlídku, 3D prohlídku MATTERPORT a nechat se inspirovat vizualizacemi.
Nedílnou součástí prodeje je i garáž v ceně 1.000.000,- Kč, jenž je nutno připočíst nad rámec inzertní ceny.
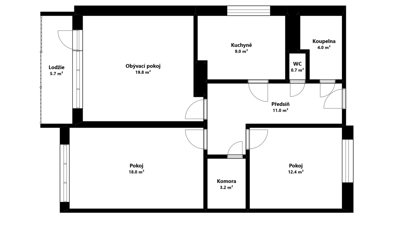
Ve výhradním zastoupení majitele si vám ke koupi dovoluji představit byt o dispozici 3+1, který nabízí celkovou podlahovou plochou 82,5m2 a nachází se v prvním patře čtyřpodlažního cihlového bytového domu z roku 1980. Součástí podlahové plochy je sklepní kóje o ploše 3,4m2. Nad rámec podlahové plochy patří lodžie s výměrou 5,6m2. Součástí prodeje je také prostorná garáž o výměře 23,5m2 v přízemí domu s napojením na elektřinu a studenou vodu.
Okna jsou plastová v dobrém stavu. SVJ hospodaří dobře a nevázne zde žádný revitalizační úvěr. V plánu je oprava 1/4 střechy bytového domu, jenž bude financována z úspor společenství.
Nemovitost je nabízena nevybavená a je vhodná k rekonstrukci. Elektrické rozvody jsou původní v hliníku.
Výhodou dispozice je centrální chodba spojující všechny obytné místnosti stejně jako oddělené WC a koupelna.
Vytápění zajišťuje plynový kotel.
Ohřev vody zajišťuje původní plynová karma.
Měsíční náklady na bydlení pro 6 členou domácnost za rok 2023 byly:
Městská část Řečkovice nabízí kompletní občanskou vybavenost a patří mezi nejžádanější Brněnské čtvrti. V docházkové vzdálenosti bytu najdeme mateřskou i základní školu, gymnázium, cukrárnu či posilovnu. Skvělé napojení na rychlostní komunikaci, vlaková stanice či konečná tramvajové linky č.1 dávají místu perfektní dopravní dostupnost.
Energetický šítek je v procesu vyhotovení SVJ a v tento moment nebyl dodán. Proto uvádíme hodnotu G - nedodáno, avšak to neznamená, že do ní nemovitost skutečně spadá.
V případě více zájemců bude nemovitost prodána nejvýhodnější nabídce a prodávající si vyhrazuje právo vybrat kupujícího na základě jím zvolených kritérií.
Veškeré zveřejněné údaje obsažené v tomto inzerátu mají pouze informativní charakter a nejsou nabídkou ve smyslu §1731 nebo § 1732 občanského zákoníku, ani se nejedná o veřejný příslib dle § 1733 občanského zákoníku. Z této nabídky tak nikomu nevzniká nárok na uzavření smlouvy.
Zajištění hypotečního servisu s nejvýhodnější nabídkou na trhu dle individuálních potřeb klienta je samozřejmostí a zdarma.
Zaujala Vás tato nemovitost stejně jako mě?
Zavolejte mi a sjednejte si termín prohlídky!
Váš osobní realitní partner
Tomáš Nedoma
Řečkovice (německy Rzeczkowitz či Retschkowitz, v hantecu Řečky nebo Řečkany) jsou městská čtvrť na severním okraji statutárního města Brna. Její katastrální území má rozlohu 6,68 km². Původně samostatná obec byla k Brnu připojena v roce 1919, od 24. listopadu 1990 je součástí samosprávné městské části Brno-Řečkovice a Mokrá Hora. Žije zde přes 14 000 obyvatel.
Řečkovice, jimiž procházejí významné silniční a železniční dopravní trasy, mají v současnosti městský charakter. Sídlí zde i úřad městské části Brno-Řečkovice a Mokrá hora. Značnou část zástavby Řečkovic tvoří kvalitní rodinné domy, vedle nich se zde vyskytují i panelové domy. Na východě katastru Řečkovic se za železniční zastávkou na trati spojující Brno s Tišnovem rozkládá rozsáhlý průmyslový areál někdejší farmaceutické společnosti Lachema. Kromě něj jinak východní polovinu katastru tvoří již pouze rozlehlé lesy Soběšické vrchoviny. V nich se v údolí potoka Kubelína nedaleko katastru Soběšic nachází přírodní památka Soběšické rybníčky.
Řečkovice sousedí na západě s Jinačovicemi a Medlánkami, na jihu s Královým Polem, na jihovýchodě se Sadovou, na východě se Soběšicemi, na severu s Ivanovicemi, Jehnicemi a Mokrou Horou.


